Bruksareal
Soverom
Bad
Energiklasse
Velkommen til Astris – en fullspekket liten enebolig med to soverom og mulighet for hems. Astris er huset for deg som ønsker et moderne og bærekraftig hjem med høy standard, skreddersydde løsninger og stilfullt design. Huset har energiklasse B og kvalifiserer til Grønt Boliglån samt Husbankfinansiering.
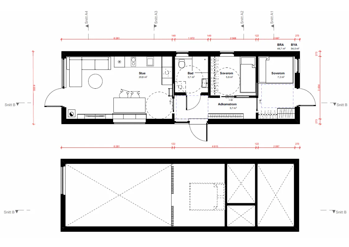
Astris har en flate på 45 kvm, store vinduer og mønet tak med høyde inntil 3,36 meter. Det lille huset fremstår med andre ord både lyst og luftig. Stue og kjøkken ligger i åpen løsning, og om ønskelig blir hemsen plassert med adkomst fra kjøkkenet. Videre inneholder huset to gode soverom, et arealeffektivt bad og romslig entré med avsatt plass til garderobe. Utenfor boligen kan vi som leverandører være behjelpelige med å skape drømmeplassen.
Astris har en god standard, og inkludert i leveransen er både gulvvarme, balansert ventilasjon og stilrene overflater. Kjøkken er inkludert til en verdi av kr 45 000,- og bad til en verdi av kr 30 000,-. Begge deler kan tilpasses gjennom tilvalg.
Mulighetene for tilpasninger og tilvalg er mange, slik at du kan løfte hjemmet ditt til et nytt nivå av komfort, kvalitet og estetikk. Tilvalg kan være hems, peis, leirepuss eller kryssfiner på veggene, billader, varmepumpe, solcellepanel og spesialtilpassede løsninger m.m.
For å gjøre oppgradering enklere, har vi laget tilvalgspakkene Harmoni og Eleganse. Bruk de som utgangspunkt, og gjør hjemmet ditt enda mer personlig med de tilvalgene som passer deg best. Snakk gjerne med våre selgere om dette.
Planløsning: Inngangsparti/entré, stue/kjøkken, bad/wc og 2 soverom.
Annet: Utebod og mulighet for hems.
Entré: Astris har en romslig entré på 5,7 kvm. Entreen har avsatt plass til garderobeskap, som kan velges ved tilvalg. Som standard får vegger og tak listefri overgang, og gips som kan males i valgfri farge. Gulvet får laminat og varmefolie som tørker raskt opp etter vått yttertøy. Tilvalg gir mulighet for andre overflater som vinyl, parkett, kryssfiner og leire.
Stue/kjøkken: Fra entreen er det skyvedør inn til stuen og kjøkkenet, som ligger i åpen løsning. Den åpne løsningen gir et totalareal på 20 kvm, noe som gir plass til spisebord i tillegg til sofamøblement. Mønet tak med høyde inntil 3,36 meter, samt store vinduer sørger for en åpen og innbydende atmosfære. Det ene vinduet er fra gulv til tak og har dør ut til en fremtidig uteplass. Om ønskelig kan vi som leverandører være behjelpelige med å skape et flott utemiljø.
Stuen/kjøkkenet leveres med laminatgulv, gulvvarme, malte gipsvegger og malt gipstak med LED-lys. Fargen på maling er valgfritt, og gips kan endres til kryssfiner eller leire ved tilvalg. Gulvet kan for øvrig også endres til vinyl eller eikeparkett. Verdt å merke seg er muligheten for å velge til en spesiallaget sittebenk i vinduet og Ikea oppbevaringsløsninger for et smart og elegant stueområde.
Kjøkkeninnredning fra Ikea til en verdi av kr 45 000,- er inkludert i standard leveranse. Her kan du få med både over- og underskap, benkeplate med nedfelt vask, samt integrerte hvitevarer i form av induksjonstopp, stekeovn, oppvaskmaskin, kjøleskap og ventilator med kullfilter. LED stripe under overskapene medfølger. Alt over gitt sum er å anse som tilvalg.
Bad/wc/vaskerom: Badet har et delikat uttrykk og leveres som standard med gulvvarme, vinylbelegg, malt gipstak og FIBO trespo eller vannfast kryssfiner på veggene. Som tilvalg kan det endres til flis på gulv og vegger.
Inkludert i leveranse til en totalverdi på kr 30 000,- er baderomsinnredning fra Ikea med servant, ett-greps blandebatteri og underskap. Innredning kan endres etter nærmere avtale.
I tillegg medfølger speil med integrert lys, stikkontakt ved speilet, vegghengt toalett med softclose, dusjvegger i glass eller dusjkabinett, samt opplegg for vaskemaskin. Badet får fuktstyrt avtrekksvifte og varmtvannsbereder på 80 liter. Alt over gitt sum er å anse som tilvalg.
Soverom og garderobe: Minihuset har to gode soverom på henholdsvis ca. 5 og 7 kvm. Begge soverommene får pent innslipp av naturlig lys, og det største vil i tillegg få dør ut. Gulvet får varmefolie og laminat, mens vegger og tak får gips malt i valgfri farge. Også her kan det gjøres tilvalg med andre overflater. Det er mulighet for garderobe på soverommene, og ellers er det lagringsplass i en isolert utebod på ca. 2,5 kvm.
Ved behov for ekstra soveplass eller lagringsmuligheter er det mulig å montere hems. Hemsen vil ha to takvinduer og adkomst via stige fra kjøkkenet.
Minihuset varmes opp med varmefolie i alle rom. Som tilvalg kan man sette inn panelovner, peisovn i stuen og varmepumpe.
Minihuset er 13,5 meter langt og 4 meter bredt. Det er stående, brent trekledning i enten 12 eller 9 cm tykkelse, som leveres beiset eller ferdig malt. Utvendig målt yttervegger har U-verdi 0,22 og utvendig målt tak og gulv har U-verdi 0,18.
Astris leveres med vannbestandig stikkontakt, vegglampe ved inngangspartiet og vinterklargjort, utendørs vannkran.
Billader kan velges ved tilvalg, og ellers kan Astris også leveres med livsløpsstandard ute.
| Boligtype | Enebolig |
|---|---|
| Eierform | Eier (Selveier) |
| Eierforhold (tomt) | Eier (Selveier) |
| Primærrom | 45 m² |
| Bruksareal (BRA) | 47.5 m² |
| Eksternt bruksareal (BRA-e) | 2.5 m² |
| Ytre mål | ca. 13,15 m x 6 m |
| Antall soverom | 2 |
| Antall bad | 1 |
| Høyde | 3.36 m |
| Energimerking | B |
| Antall parkeringsplasser | 2 |
Tilleggspakke med praktiske oppgraderinger og en moderne, stilren finish – uten at det går på bekostning av budsjettet. Pakken kombinerer funksjonalitet og estetikk, og skaper en behagelig atmosfære i hele boligen.
Se vedlagte brosyre i salgsoppgave for mer informasjon.
Vår mest eksklusive tilleggspakke for deg som ønsker det aller beste – et hjem som utstråler komfort og eksklusivitet. Denne pakken er fylt med høyeste kvalitet på materialer, detaljer og tekniske løsninger. Fra flotte fliser på baderommet til eksklusive parkettgulv og varmepumpe.
Se vedlagte brosyre i salgsoppgave for mer informasjon.
Eiendommen ligger på toppen og i et blindvei i et etablert og familievennlig boligområde på Nøtterøy, med kort vei til både natur, servicetilbud og offentlig transport. Området byr på en god kombinasjon av rolig bomiljø og nærhet til daglige fasiliteter.
Last ned brosjyre for Øvre Smidsrødvei med bilder og informasjon
Detaljert oversikt over hva som er inkludert i leveransen
Rammetillatelse
Det foreligger ikke rammetillatelse fra kommunen, men søknaden blir sendt inn etter signering av kjøpekontrakten.
Tinglyste forpliktelser og rettigheter
Det er per dags dato ingen heftelser som er tinglyst i eiendommens grunnboksdatablad.
Selger kan tinglyse bestemmelser som vedrører naboforhold eller forhold pålagt av myndighetene. Videre kan selger tinglyse bruksretter til fremtidige byggetrinn.
Selger forbeholder seg retten til å selge sine rettigheter og forpliktelser overfor kjøper til 3. mann. Kopi av grunnbokutskrift og servitutter tinglyst på eiendommen kan fremlegges av megler.
Energimerking
Alle nye boliger over 50 kvm skal energimerkes. Energimerking utføres av selger og vil bli utført i forbindelse med detaljprosjekteringen. Energimerkingen vil foreligge på et senere tidspunkt, men den foreløpige energimerkingen tilsier at boligene vil få energiklasse B.
Oppvarming – Teknisk
Boligene varmes opp med varmefolie i alle rom. Som tilvalg kan man sette inn panelovner, ildsted i stuen og/eller varmepumpe.
Den elektriske leveransen prosjekteres av Totalservice AS og leveres iht. NEK 400. Det leveres skjult anlegg, LED belysning, balansert vemntilasjonsanlegg og varmtvannsbereder på 80 liter som plasseres i skap på bad over wc.
Parkering
Det medfølger parkeringsplasser til boligen, og det vil kunne bestilles elbillader.
Overtakelse
Boligen planlegges ferdigstilt senest 12/2025.
Dette gjelder ikke som en bindende frist for å ha boligene klar for overtakelse, herunder ikke grunnlag for å kreve dagmulkt.
Selger vil ca. 2 måneder i forveien sende varsel om estimert tidspunkt for overtakelse.
Selger vil 2-3 uker før ferdigstillelse av Boligen meddele kjøper skriftlig om overtakelsesdato.
3-4 uker før overtakelse vil selger innkalle til en forhåndsbefaring hvor det føres protokoll.
Formålet med forhåndsbefaringen er å kvalitetssikre leveransen. Hver kjøper vil ved overtakelse få overlevert FDV- dokumentasjon.
Selger kan kreve overtakelse inntil fire måneder før den avtalte fristen. Selger skal skriftlig varsle om dette minimum to måneder før det nye overtagelsestidspunktet.
Selger skal innen rimelig tid varsle kjøper dersom det oppstår forhold som vil medføre at han blir forsinket med sin utførelse. Selger har rett til tilleggsfrist dersom vilkårene som nevnt i buofl. § 11 er oppfylt.
Kjøper kan ikke nekte å overta boligen selv om fradeling, seksjonering eller tinglysing av hjemmelsovergang ikke er gjennomført på overtakelsesdagen.
Selger gjør oppmerksom på at nyhetsbrev ikke er å anse som varsel for overtakelse.
Overtakelse av uteareal skjer samtidig med at den enkelte bolig overtas. Det vil gjennomføres en befaring for å avdekke evt. feil og mangler samt manglende ferdigstillelse.
Overtakelse av boligen kan ikke nektes av kjøper selv om utomhusareal ikke er ferdigstilt. Ferdigstillelse av utomhusareal er avhengig av sesong og kan derfor bli ferdigstilt etter overtagelse av boligene. Såfremt deler av utvendige arbeider ikke er ferdigstilt ved overtakelse, skal manglende ferdigstilte arbeider anmerkes i overtakelsesprotokollen. Kjøper opplyses om muligheten til å tilbakeholde nødvendig beløp på meglers klientkonto som sikkerhet for manglene. Tilbakeholdt beløp må stå i samsvar med manglene. Alternativt kan selger stille garanti for ferdigstillelsen, med beløp utarbeidet av takstmann. Ovennevnte informasjon om tilbakeholdelse gjelder også for de forhold som gjenstår for å få ferdigattest.
Kjøper aksepterer at deler av utomhusarbeidene ikke er ferdigstilt ved overtagelse. Selger forplikter seg til å gjøre ferdig disse så snart som mulig etter at bebyggelsen/ feltet er ferdig.
Inntil samtlige hus/seksjoner er ferdigstilt, har selger rett til å ha stående anleggsmaskiner og utstyr, eventuelle brakker mv., samt ha stående skilt på den solgte eiendom. Eventuelle skader som dette måtte påføre eiendommen, skal selger snarest utbedre.
Hvis det på tidspunkt for overtagelse gjenstår utomhusarbeider, har kjøper rett til å holde tilbake så mye av kjøpesummen som er nødvendig for å sikre at gjenstående arbeider ferdigstilles, jf. buofl. § 31. Kjøper aksepterer at tilbakehold gjøres på meglers klientkonto.
Forbehold om realisering
Selger tar følgende forbehold før bygging kan startes:
– Offentlig godkjenning av prosjektet inklusive igangsettingstillatelse
– Forbehold om utbetalt byggelån
Endelig byggestart er avhengig av at ramme og igangsettelses tillatelse blir gitt fra myndighetene i god tid før planlagt byggestart. Det tas generelt forbehold om myndighetenes saksbehandlingstid og eventuelt justering fremdriften for overtakelse/innflytning, hjemmelsoverføring som videre følge av dette.
Det kan forekomme avvik mellom leveransebeskrivelsen og plantegninger. I slike tilfeller er det alltid leveransebeskrivelsen som er retningsgivende.
Det gjøres oppmerksom på at tegninger, herunder plantegninger ikke er godkjent av kommunen. Dersom det er avvik mellom prospekt/internettside og leveransebeskrivelsen er det alltid den endelige leveransebeskrivelsen som gjelder. Omfanget av leveransen begrenset til dette. Alle illustrasjoner, 3D-perspektiver, skisser, møblerte plantegninger m.m. er kun ment for å danne et inntrykk av den ferdige bebyggelsen, og kan således ikke anses som endelig leveranse. Inntegnet utstyr/inventar som for eksempel inntegrerte hvitevarer på bad, lamper i oppholdsrom, møbler, skap o.l. Dette stiples som regel på salg og kontraktstegning. Legge retning på gulv kan også bestemmes av entreprenør, uavhengig av hva illustrasjoner viser.
3D perspektiver er tatt fra arkitekt tegninger og ulike boliger og gjenspeiler ikke en aktuell bolig. Interessenter oppfordres til å vurdere dette med solforhold, utsikt, beliggenhet i forhold til terreng og omkringliggende bygningsmasse før innlevering av kjøpstilbud.
Alle opplysninger i leveransebeskrivelsen og salgsoppgaven er gitt med forbehold om selgers rett til endringer som er hensiktsmessige eller nødvendige, forutsatt at den ikke reduserer den generelle standarden vesentlig. Kjøper aksepterer uten prisjustering at selger har rett til å foreta slike endringer. Eksempler på slike endringer kan være innkassing av teknisk anlegg, mindre endringer av boligens areal eller lignende.
Utomhusplanen i prospektet er av en slik karakter at den ikke kan anses som et kart, men illustrasjonsskisse fra landskapsarkitekt. Utomhusplanen er utarbeidet for å illustrere tomtens planlagte opparbeidelse, men er ikke endelig fastsatt og kan endres i forbindelse med detalj prosjekteringen og den offentlige saksbehandlingen.
Selger står fritt til å endre boligbetegnelse i prosjekteringsprosessen og det tas forbehold om eventuelt mindre endring av antall boliger.
Øvrige forbehold
Det forutsettes at skjøtet tinglyses i kjøpers navn iht. kjøpekontrakten. Ved eventuell endring i eierskap /navneendring fra kjøpers side etter at bindende avtale er inngått, vil det påløpe et administrasjonsgebyr på kr. 25.000. Eventuell endring krever selgers samtykke.
Alle opplysninger i dette prospektet er gitt med forbehold om rett til endringer som er hensiktsmessige og nødvendige.
Tilvalg og endringer
Det vil, i en tidsbegrenset periode, være anledning til å gjøre tilvalg/endringer til boligene. Mulige tilvalg vil bli presentert i en egen tilvalgsbrosjyre. Det opplyses om at det er begrensede muligheter for tilvalg/endringer grunnet konsept og leveranse.
Alle tilvalg/endringer avtalefestes direkte mellom kjøper og entreprenør i separat avtale. Eventuelle tilvalgsbestillinger innbetales til meglers klientkonto, eller faktureres direkte fra entreprenør/selger.
Endringer ut over de som fremkommer av tilvalgsbrosjyre må på fritt grunnlag vurderes av selger, entreprenør og dennes underleverandør. Det kan ikke påregnes at andre endringer kan foretas, og de kan uansett ikke utføres om de er i strid med rammetillatelse eller vil kunne medføre forsinkelse i prosjektets fremdrift. Typiske endringer som ikke tillates er endringer i fasade, vindusform og plassering av vann og avløp. Det er ikke mulig med egeninnsats og det er heller ikke anledning til å fravike prosjektets leverandører.
Betaling for endrings- eller tilleggsarbeider som er avtalt direkte mellom kjøper og selger, skjer i forbindelse med sluttoppgjøret.
Inngås kjøpsavtale etter igangsetting av prosjektet, må interessenter/kjøper være kjent med og akseptere at frister for tilvalg og endringer kan være utgått. Det må tas forbehold i kjøpstilbudet dersom interessenter/kjøper har ønske om tilvalg/endringer som denne mener skal være mulig å få levert av selger.
Konferer megler for nærmere informasjon.
Tinglyste rettigheter og forpliktelser
Kommunen har legalpant som sikkerhet for betaling av kommunale avgifter. Legalpant er pant som følger av loven, og som ikke tinglyses. Legalpant følger derfor eiendommen ved salg. På eiendommen kan det være tinglyst erklæringer som f eks rett for kommunen til å vedlikeholde rørsystemer for vann- og kloakk. Disse erklæringene vil følge eiendommen ved salg. Kontakt megler for nærmere informasjon.
Servitutter / rettigheter
Eiendommen overdras fri for pengeheftelser, med unntak av eventuelle erklæringer, avtaler, servitutter og panteheftelser som fremgår av salgsoppgaven og skal følge med eiendommen ved salg. Kjøpers bank vil få prioritet etter disse. Følgende servitutter er tinglyst på eiendommens grunnboksblad:
Ingen.
Vei / Vann / Avløp
Eiendommen er tilknyttet offentlig vann- og avløp. Vi gjør oppmerksom på at private ledninger vedlikeholdes for eiers regning. For private fellesledninger er det normalt tilknyttet solidarisk vedlikeholdsplikt. Det er privat vei til offentlig vei.
Ferdigattest eller midl. brukstillatelse
Ved overtagelse skal det som minimum foreligge midlertidig brukstillatelse. Den midlertidige brukstillatelsen skal avløses av en ferdigattest når alle eventuelle gjenstående arbeider er ferdigstilt av utbygger. Det er selgers ansvar å fremskaffe dette innen overtakelse.
Verdi ved skattefastsetting
Formuesverdien er ikke fastsatt. Formuesverdien fastsettes av skatteetaten etter en beregningsmodell om boligen er primær eller sekundær. Formuesverdien for primærbolig utgjør 25% av beregnet markedsverdi opp til kr. 10 000 000,- og 70% for den delen som overstiger dette, og 100% av sekundærbolig for 2023 og 2024. Det gjøres oppmerksom på at kjøper selv må sende inn opplysninger om adresse, areal, boligtype og byggeår til skattemyndighetene. Det tas forbehold om endring av satser.
Reguleringsforhold
Eiendommen er regulert til boligformål.
Kommunale avgifter
Disse er ikke fastsatt da boligene ikke er bygget. Nes kommune fastsetter endelige kommunale avgifter (inkl. eiendomsskatt) og det tas derfor forbehold om dette. Kommunale avgifter vil faktureres direkte hver enkelt eier.
Andre faste løpende kostnader
Foruten eventuelle lån og kommunale avgifter, vil strøm, medieabonnementer, forsikring etc. være faste løpende kostnader.
Finansiering
Kontakt megler for avklaring av finansielle forhold, herunder lån til kjøp av eiendom. Privatmegleren har avtale med Nordea om formidling av lån og andre finansielle tjenester. Privatmegleren mottar godtgjørelse for dette.
Sluttoppgjør
Sluttoppgjør (rest kjøpesum, tilvalg og omkostninger) skal innbetales til meglers klientkonto senest 3 virkedager før overtagelse.
Betaling for endring og tilvalg
Betaling for endrings- eller tilleggsarbeider som er avtalt direkte mellom kjøper og selger, skjer i forbindelse med sluttoppgjøret.
Kostnader ved avbestilling
Kjøper har rett til å avbestille leveransen før overtagelse har funnet sted, jf. buofl.§§ 52-54.
Ved avbestilling vil selger ha krav på full erstatning for sitt økonomiske tap iht. buofl. Kapittel VI. Kontakt megler for nærmere informasjon dersom avbestilling vurderes. Bestilte endrings- og tilleggsarbeider betales i slike tilfeller i sin helhet.
Transport av kontrakt/Overdragelse før overtakelse
Transport av kontrakt/overdragelse før overtagelse krever selgers samtykke før salgsprosessen igangsettes. Samtykke kan nektes på fritt grunnlag, og selger kan også stille betingelser for et eventuelt samtykke. Ved utbyggers eventuelle skriftlige samtykke påløper et administrasjonsgebyr på kr. 20 000,- inkl. mva. og et transportgebyr til selger på kr. 45 000,- inkl. mva, totalt kr. 65 000,-.
Kredittvurdering/Hvitvaskingsloven
Selger forbeholder seg retten til å foreta kredittvurdering av kjøpere. Selger forbeholder seg retten til å kreve dokumentasjon av kjøpers finansiering. Eiendomsmeglere ble fra 06.03.09 underlagt bestemmelsene i Hvitvaskingsloven. Dette innebærer blant annet at eiendomsmegleren har plikt til å melde fra til Økokrim om eventuelle mistenkelige transaksjoner.
Adgang til utleie
Det er ikke kjent at det foreligger offentligrettslige hindre for at hele eller deler av eiendommen kan leies ut.
Konsesjon / Odel
Verken odel eller konsesjon er relevant for denne eiendommen.
Sikkerhetsstillelse
Alle eiendomsmeglingsforetak har lovpålagt forsikring av klientmidler begrenset oppad til kr 45 mill. Enkeltsaker er forsikret inntil kr 15 mill. Dersom kjøpers låneinstitusjon krever tilleggsforsikring ved omsetning over 15 millioner, må kjøper selv eller dennes låneinstitusjon dekke utgiftene forbundet med dette.
Selgers forbehold
Kjøper må være innforstått med den usikkerhet som foreligger med hensyn til fremdrift og overtagelse, og kan ikke påberope seg overskridelser av de her angitte estimerte overtagelsestidspunkt som avtalt frist for ferdigstillelse/overtagelse. En forsinkelse i forhold til disse estimatene vil således ikke kunne danne grunnlag for krav om dagmulkt eller annen erstatning.
Utbygger forbeholder seg retten til å foreta nødvendige endringer som følge av offentlige pålegg eller tilpasninger i forhold til tekniske løsninger. Videre forbeholder utbygger seg rett til å bestemme endelig utforming av utomhusarealer, materialvalg og fargevalg samt innvendige og utvendige fellesarealer, uten at kjøper har rett til å kreve endringer av avtalt pris. Dette gir ikke utbygger rett til å foreta endringer som er av en slik art at boligens standard objektivt sett forringes eller objektivt svekker boligens bruksverdi. Utbygger skal så langt det er praktisk mulig informere kjøper om slike endringer. Det kan være avvik mellom de plantegninger og skisser som er presentert i prospektet, og den endelige leveransen.
Solgt ihht bustadoppføringsloven
Boligene selges i henhold til Bustadoppføringslova som regulerer kjøpers (forbrukers) rettigheter og plikter ved avtale om oppføring av bolig og kjøp av fast eiendom der bygningen ikke er fullført når avtalen inngås. Ved salg til aksjeselskap legges Avhendingslovens bestemmelser til grunn. For øvrig gjelder Lov om eierseksjoner for eierseksjonssameiet og driften av dette.
Garantier
Selger er etter Bustadoppføringslova § 12 pliktig til å stille garanti på 3 % av kjøpesummen i byggetiden og 5 % av kjøpesummen i 5 år etter overlevering. Garantien vil bli stilt straks forbeholdene om realisering faller bort. Til det er dokumentert at det foreligger garanti i samsvar med paragrafen her, har forbrukeren rett til å holde tilbake alt vederlag.
Overføring av innbetalt beløp til selger er avhengig av selgers garantistillelse i.h.t. Bustadoppføringslova § 47.
Kjøpekontrakter
Avtale om kjøp av leilighet forutsettes inngått iht. kjøpstilbud og kjøpekontraktsformular. Kjøpekontrakt signeres i utgangspunktet digitalt i rimelig tid etter aksept av kjøpstilbud. Fysisk kontraktsmøte kan avholdes etter nærmere avtale.
Budregler
Boligene selges til fast pris. Signert kjøpstilbud leveres til megler sammen med rett kopi av legitimasjon, eller elektronisk gjennom «gi bud» knappen på meglers annonser. Kravet til legitimasjon er oppfylt for budgivere som benytter elektronisk bud med e-signatur, eksempelvis BankID.
Forsikring
Bygg og eiendom vil være forsikret av utbygger frem til overtagelse, deretter tegnes fullverdiforsikring av hver enkelt seksjonseier. Kjøper må også selv tegne innbo- og løsøreforsikring.
Finansiering
Kjøper er innforstått med at irreversibelt finansieringsbevis for hele kjøpesummen skal forelegges megler når avtale om kjøp inngås iht. Bustadoppføringslovas §46 2.ledd, og at disse opplysningene kan bli videre formidlet til utbyggers byggelånsbank.
Handelen er juridisk bindende for begge parter ved aksept. Dersom kjøper ikke overholder sin forpliktelse med tilfredsstillende finansieringsbevis, er kjøper allikevel bundet og selger vil kunne påberope avtalen som vesentlig misligholdt og heve avtalen. Kjøper samtykker til at omkostninger knyttet til heving og dekningssalg i så fall dekkes av kjøper.
Lov om hvitvasking
Megler er underlagt lov om hvitvasking som innebærer plikt til å melde ifra til Økokrim om mistenkelige transaksjoner
"*" obligatorisk felt
Vi arrangerer private visninger etter avtale. Ta kontakt for å booke din visning og se Tunneltoppen 10 med egne øyne.