Solgt

Siggerudhagan 6

45 m²

Bruksareal

2

Soverom

1

Bad

B

Energiklasse

Enebolig 1

Stilren liten enebolig med 2 soverom, livsløpsstandard og miljøbevisste løsninger. Høy standard som kan skreddersys dine behov

Sammendrag av August

August er en flott liten enebolig med stilrent design og livsløpsstandard – ideelt for dem som setter pris på smarte, miljøbevisste løsninger. Minihuset leveres med høy standard og kan skreddersys for å passe akkurat dine behov og stil, uansett om du vil benytte huset som hjem, gjestehus eller utleieobjekt. Huset har energiklasse B og kvalifiserer til Grønt Boliglån samt Husbankfinansiering.

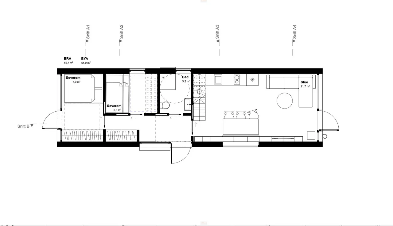
August er et kompakt og funksjonelt hus med en godt utnyttet flate på 45 kvm. Med takhøyde på inntil 3,32 meter, vinduer fra gulv til tak og takvinduer, oppleves minihuset romsligere enn hva arealet skulle tilsi. I tillegg gjør smarte løsninger det svært arealeffektivt. Huset inneholder entré, to soverom, bad og stue/kjøkken i åpen løsning. To av rommene får utgang til en fremtidig uteplass. Videre er det mulighet for hems ved tilvalg.

Inkludert i leveransen er både gulvvarme, balansert ventilasjon og moderne overflater. Kjøkken er inkludert til en verdi av kr 45 000,- og bad til en verdi av kr 30 000,-. Praktisk oppbevaringsplass medfølger i en isolert utebod på ca. 2,5 kvm.

Mulighetene for tilpasninger og tilvalg er mange, slik at du kan løfte hjemmet ditt til et nytt nivå av komfort, kvalitet og estetikk. Tilvalg kan være hems, peis, leirepuss eller kryssfiner på veggene, billader, varmepumpe, solcellepanel og spesialtilpassede løsninger m.m.

For å gjøre oppgradering enklere, har vi laget tilvalgspakkene Harmoni og Eleganse. Bruk de som utgangspunkt, og gjør hjemmet ditt enda mer personlig med de tilvalgene som passer deg best. Snakk gjerne med våre selgere om dette.

Innvendig standard

Planløsning: Inngangsparti/entré, stue/kjøkken, bad/wc og 2 soverom.

Annet: Isolert utebod og mulighet for hems.

Entré: August har inngang til en relativt romslig entré med avsatt plass til garderobeskap. Det er stort vindu ved ytterdøren, og mellom entreen og øvrige rom er det plassbesparende skyvedører. Som standard blir det laminatgulv med varmefolie, gips på vegger og tak malt i ønsket farge, samt listefrie overganger for stilren finish. Tilvalg gir mulighet for andre overflater som vinyl, parkett, kryssfiner og leire.

Stue/kjøkken: Stue og kjøkken ligger i åpen løsning og er et herlig allrom på 20,6 kvm. Rommet får takhøyde på opptil 3,32 meter og store vinduer mot to himmelretninger. Ett av vinduene er fra gulv til tak. I tillegg får rommet takvinduer og utgang til tiltenkte utefasiliteter, hvor vi som leverandør kan være behjelpelige med å skape et flott utemiljø.

Den åpne romløsningen danner en naturlig sofasone og spiseplass, og i himlingen er det LED-belysning for stemning langt inn i sene kveldstimer. Videre leveres rommet med laminatgulv, gulvvarme, malte gipsvegger og malt gipstak. Fargen på maling er valgfritt, og gips kan endres til kryssfiner eller leire ved tilvalg. Gulvet kan for øvrig også endres til vinyl eller eikeparkett.

Verdt å merke seg er muligheten for å velge til en spesiallaget sittebenk i vinduet og Ikea oppbevaringsløsninger for et smart og elegant stueområde.

Kjøkkeninnredningen blir levert fra Ikea og har en verdi på kr 45 000,-. Her kan du få med både over- og underskap, benkeplate med nedfelt vask, samt integrerte hvitevarer i form av induksjonstopp, stekeovn, oppvaskmaskin, kjøleskap og ventilator med kullfilter. LED stripe under overskapene medfølger. Alt over gitt sum er å anse som tilvalg.

Bad/wc/vaskerom: Badet har et delikat uttrykk og leveres som standard med gulvvarme, vinylbelegg, malt gipstak og FIBO trespo eller vannfast kryssfiner på veggene. Som tilvalg kan det endres til flis på gulv og vegger.

Inkludert i leveranse til en totalverdi på kr 30 000,-, er baderomsinnredning fra Ikea med servant, ett-greps blandebatteri og underskap. Innredning kan endres etter nærmere avtale.

I tillegg medfølger speil med integrert lys, stikkontakt ved speilet, vegghengt toalett med softclose, dusjvegger i glass eller dusjkabinett, samt opplegg for vaskemaskin. Badet får fuktstyrt avtrekksvifte og varmtvannsbereder på 80 liter. Alt over gitt sum er å anse som tilvalg.

Soverom og garderobe: I motsatt ende av stuen får minihuset to soverom vegg-i-vegg. Soverommene er på 5,4 og 7 kvm, hvor det største får vinduer langs hele endeveggen, dør ut og avsatt plass til garderobe. Overflatene blir like som i øvrige rom. Ved behov for mer plass kan det bestilles hems som tilvalg. Hemsen får adkomst fra kjøkkenet og vil ha to takvinduer. Videre blir det oppført en isolert utebod på ca. 2,5 kvm med mulighet for innlagt strøm.

Oppvarming

Minihuset varmes opp med varmefolie i alle rom. Som tilvalg kan man sette inn panelovner, peisovn i stuen og varmepumpe.

Teknisk

  • Elektrisk arbeid NEK 400 prosjekteres av Totalservice AS
  • Det er varmefolie i alle rom
  • Balansert ventilasjonsanlegg
  • LED lamper i gang, stue/kjøkken og bad
  • Skjult anlegg på alle innvendige punkter
  • Utvendig stikk og LED utelamper ved alle dører (skjult opplegg)
  • Sikringsopplegg med jordfeilbryter og overspenningsvern
  • Varmtvannsbereder på 80 liter plasseres i skap på bad over wc

Utvendig standard

Minihuset er 13,5 meter langt og 4 meter bredt. Det er stående, brent trekledning i enten 12 eller 9 cm tykkelse, som leveres beiset eller ferdig malt. Utvendig målt yttervegger har U-verdi 0,22 og utvendig målt tak og gulv har U-verdi 0,18.

Minihuset August leveres med vannbestandig stikkontakt, vegglampe ved inngangspartiet og vinterklargjort, utendørs vannkran. Billader kan velges ved tilvalg, og ellers kan August også leveres med livsløpsstandard ute.

Oppvarming – Teknisk

Boligene varmes opp med varmefolie i alle rom. Som tilvalg kan man sette inn panelovner, ildsted i stuen og/eller varmepumpe.

Den elektriske leveransen prosjekteres av Totalservice AS og leveres iht. NEK 400. Det leveres skjult anlegg, LED belysning, balansert vemntilasjonsanlegg og varmtvannsbereder på 80 liter som plasseres i skap på bad over wc.

Parkering

Det er bergenet 2 – plasser til boligen. Det vil kunne bestilles elbillader eller elektrisk tilførsel til carporten som tilvalg. Øvrig parkering på egen gårdsplass og etter områdets gjeldende bestemmelser.

Høydepunkter

  • Energiklasse B
  • Høy takhøyde (3,32m)
  • Varmefolie i alle rom
  • Kjøkkenpakke til kr 45 000,-
  • Badpakke til kr 30 000,-
  • Balansert ventilasjon med varmegjenvinning
  • Mulighet for hems
  • Livsløpsstandard
  • 2 parkeringsplasser
Pris fra
kr 2 790 000
+ omk. 20 000 kr

Tekniske spesifikasjoner

Boligtype Enebolig
Eierform Selveier
Bruksareal (BRA) 45 m²
Ytre mål ca. 13,5 m x 4 m
Antall soverom 2
Antall bad 1
Takhøyde Opp til 3,32 m
Energimerking B
Ferdigstillelse Q4 2025
Parkering Egen parkeringsplass

Inkludert i standardpakke

  • Kjøkkenpakke til kr 45 000,- med over-/underskap, benkeplate, integrerte hvitevarer
  • Baderomspakke til kr 30 000,- med innredning, servant, vegghengt toalett, dusjvegger
  • Varmefolie i alle rom
  • Varmekabler på bad
  • Balansert ventilasjonsanlegg med varmegjenvinning
  • LED-belysning i gang, stue/kjøkken og bad
  • Varmtvannsbereder 80 liter
  • Isolert utebod på ca. 2,5 kvm
  • Stående, brent trekledning utvendig

Tilvalgspakker

Vi byr på mange tilvalgsmuligheter og har laget to pakker for å gjøre oppgradering enklere. Ønsker du en skreddersydd løsning? Ta kontakt for en uforpliktende samtale.

Harmoni

Tilleggspakke med praktiske oppgraderinger og en moderne, stilren finish – uten at det går på bekostning av budsjettet. Pakken kombinerer funksjonalitet og estetikk, og skaper en behagelig atmosfære i hele boligen.

  • Vinylgulv i alle rom – slitesterkt og behagelig
  • Oppgradert Ikea kjøkken til en verdi på kr 55 000,-
  • Et Ikea garderobeskap, PAX Auli eller Bergsbo, til hovedsoverom og til gang
  • RAIS Q-tee 2 svart vedovn med høy sokkel

Eleganse

Vår mest eksklusive tilleggspakke for deg som ønsker det aller beste – et hjem som utstråler komfort og eksklusivitet. Denne pakken er fylt med høyeste kvalitet på materialer, detaljer og tekniske løsninger. Fra flotte fliser på baderommet til eksklusive parkettgulv og varmepumpe.

  • Fliser på både vegger og gulv i baderommet
  • Baderomsutstyr over kr 40 000,- for et luksuriøst og funksjonelt bad
  • Eikeparkett i alle rom utenom bad, for et stilfullt og eksklusivt uttrykk
  • Oppgradert Ikea kjøkken til en verdi på kr 75 000,- (kan brukes til eks. fronter, ekstra funksjoner eller hvitevarer)
  • Varmepumpe og peis for energieffektivitet og koselig atmosfære
  • Ikea garderobeskap til to soverom og til gang
  • Hems og stige

Beliggenhet

Denne boligen ligger i et veletablert og svært populært boligområde på Siggerudhagan i Eidsvoll – et sted som kombinerer naturskjønne omgivelser med kort vei til servicetilbud og kollektivtransport.

Bare 5 km unna finner du Sundet, Eidsvolls sentrum, hvor du har alt du trenger av butikker, kafeer, frisører og apotek. Ønsker du et enda større utvalg, ligger Råholt kun 6 km unna, med kjøpesenteret Amfi Eidsvoll og det moderne og populære badelandet Råholt Bad.

For de som setter pris på natur og friluftsliv, byr nærområdet på flotte turmuligheter året rundt, enten du liker å gå tur i skogen, sykle eller nyte vinterens skiforhold. Hverdagen blir også enkel med kort vei til barnehage, skole, nærbutikk og bussholdeplass. Det går hyppige bussavganger – opptil fire ganger i timen på hverdager – i tillegg til et godt togtilbud som tar deg til Oslo på omtrent 35 minutter.

Eidsvoll er et fantastisk sted for deg som verdsetter naturskjønn ro kombinert med god tilgjengelighet til større byer. Jessheim ligger ca. 27 km unna, Oslo Lufthavn Gardermoen ca. 30 km, og Oslo sentrum ca. 68 km. Her får du det beste av to verdener – et trygt og idyllisk nærmiljø med kort vei til alt du måtte trenge!

Reiseavstander

Skole og barnehage

Området har gode tilbud for barnefamilier, med barnehager og skoler i kort avstand. Nordre Follo er en moderne og voksende kommune med høy kvalitet på kommunale tjenester.

Turområder

Marka er lett tilgjengelig med flotte turmuligheter både sommer og vinter. Ski har et rikt tilbud av idrettsanlegg, svømmehall og rekreasjonsområder.

Offentlig transport

Ski stasjon gir deg rask forbindelse til Oslo S på under 20 minutter med Follobanen – Norges raskeste jernbane. Perfekt for pendlere.

Butikker og servicetilbud

Ski sentrum med Ski Storsenter, dagligvarer og alle nødvendige servicetilbud ligger i kort avstand fra eiendommen.

Nedlastinger

Brosjyre

Last ned brosjyre for Siggerudhagan 6 med bilder og informasjon

Leveransebeskrivelse

Detaljert oversikt over hva som er inkludert i leveransen

Vilkår

Forretningsførsel

Selger har ikke inngått bindende forretningsføreravtale. Det skal velges styre før overtakelse. Sameie står fritt til å inngå forretningsføreravtale eller foreta privat forretningsførsel.

Kjøperne vil bli innkalt til oppstartsmøte. Her vil styre bli valgt, i tillegg vil det bli en gjennomgang av sameiets budsjett, vedtekter og ev. husordensregler. Lokalleie i forbindelse med møte og gebyr for registrering i Brønnøysund faktureres sameiet ved overtakelse.

Leverandøravtaler:
Selger har på vegne av sameiet og realsameiet anledning til å inngå bindende avtaler med inntil fem års varighet vedrørende avtaler med bl.a. følgende leverandører:
– Forretningsfører
– Vaktmesterselskap, vaktselskap og serviceverter.
– Leverandør av TV og internett
– Serviceavtale for avfall/renovasjon og drift av fellesarealer.

Prisliste

Det er utarbeidet en separat prisliste som viser bruksareal (BRA-i) for hver bolig. I tillegg viser prislisten stipulerte omkostninger og felleskostnader. Selger står fritt til å endre priser når som helst for enheter hvor det ikke er inngått budaksept.

Overtakelse

Boligene planlegges ferdigstilt senest 1. kvartal 2026.
Dette gjelder ikke som en bindende frist for å ha boligene klar for overtakelse, herunder ikke grunnlag for å kreve dagmulkt.

Selger vil ca. 2 måneder i forveien sende varsel om estimert tidspunkt for overtakelse.
Selger vil 2-3 uker før ferdigstillelse av Boligen meddele kjøper skriftlig om overtakelsesdato.

3-4 uker før overtakelse vil selger innkalle til en forhåndsbefaring hvor det føres protokoll.
Formålet med forhåndsbefaringen er å kvalitetssikre leveransen. Hver kjøper vil ved overtakelse få overlevert FDV- dokumentasjon.
Selger kan kreve overtakelse inntil fire måneder før den avtalte fristen. Selger skal skriftlig varsle om dette minimum to måneder før det nye overtagelsestidspunktet.
Selger skal innen rimelig tid varsle kjøper dersom det oppstår forhold som vil medføre at han blir forsinket med sin utførelse. Selger har rett til tilleggsfrist dersom vilkårene som nevnt i buofl. § 11 er oppfylt.
Kjøper kan ikke nekte å overta boligen selv om fradeling, seksjonering eller tinglysing av hjemmelsovergang ikke er gjennomført på overtakelsesdagen.
Selger gjør oppmerksom på at nyhetsbrev ikke er å anse som varsel for overtakelse.

Overtakelse av felles- og uteareal skjer samtidig med at den enkelte bolig overtas. Det vil gjennomføres en befaring av felles/utomhusarealer med styret for sameiet for å avdekke evt. feil og mangler samt manglende ferdigstillelse.

Overtakelse av boligen med tilhørende andel fellesareal kan ikke nektes av kjøper selv om fellesareal/utomhusareal ikke er ferdigstilt. Ferdigstillelse av utomhusareal er avhengig av sesong og kan derfor bli ferdigstilt etter overtagelse av boligene. Såfremt deler av utvendige arbeider ikke er ferdigstilt ved overtakelse, skal manglende ferdigstilte arbeider anmerkes i overtakelsesprotokollen. Kjøper opplyses om muligheten til å tilbakeholde nødvendig beløp på meglers klientkonto som sikkerhet for manglene. Tilbakeholdt beløp må stå i samsvar med manglene. Alternativt kan selger stille garanti for ferdigstillelsen, med beløp utarbeidet av takstmann. Ovennevnte informasjon om tilbakeholdelse gjelder også for de forhold som gjenstår for å få ferdigattest.

Kjøper aksepterer at deler av utomhusarbeidene ikke er ferdigstilt ved overtagelse. Selger forplikter seg til å gjøre ferdig disse så snart som mulig etter at bebyggelsen/feltet er ferdig.
Inntil samtlige hus/seksjoner er ferdigstilt, har selger rett til å ha stående anleggsmaskiner og utstyr, eventuelle brakker mv., samt ha stående skilt på den solgte eiendom. Eventuelle skader som dette måtte påføre eiendommen, skal selger snarest utbedre.

Hvis det på tidspunkt for overtagelse gjenstår utomhusarbeider, har kjøper rett til å holde tilbake så mye av kjøpesummen som er nødvendig for å sikre at gjenstående arbeider ferdigstilles, jf. buofl. § 31. Kjøper aksepterer at tilbakehold gjøres på meglers klientkonto. Partene gir sameiets styre fullmakt til å frigi beløpet til Selger etter at gjenstående arbeider anmerket i protokoll er utbedret.

Kjøper kan ikke motsette seg overtakelse selv om boligen ikke er ferdig seksjonert.

Forbehold om realisering

Selger tar følgende forbehold før bygging kan startes:

– Offentlig godkjenning av prosjektet inklusive igangsettingstillatelse
– Forbehold om utbetalt byggelån

Endelig byggestart er avhengig av at ramme og igangsettelses tillatelse blir gitt fra myndighetene i god tid før planlagt byggestart. Det tas generelt forbehold om myndighetenes saksbehandlingstid og eventuelt justering fremdriften for overtakelse/innflytning, hjemmelsoverføring som videre følge av dette.

Forbeholdene skal være avklart eller slettet innen 01.05.2025. Dersom ikke overnevnte forbehold er avklart innen fristen kan selger velge å ikke realisere prosjektet. Ved eventuell senere avklaring endres ferdigstillelsestidspunkt/innflytningstidspunkt tilsvarende. Kjøper kan innen en-1-uke etter forbeholdsfristen skriftlig trekke seg fra avtalen dersom ikke selger har avklart/slettet sine forbehold.

Det kan forekomme avvik mellom leveransebeskrivelsen og plantegninger. I slike tilfeller er det alltid leveransebeskrivelsen som er retningsgivende.
Det gjøres oppmerksom på at tegninger, herunder plantegninger ikke er godkjent av kommunen. Dersom det er avvik mellom prospekt/internettside og leveransebeskrivelsen er det alltid den endelige leveransebeskrivelsen som gjelder. Omfanget av leveransen begrenset til dette. Alle illustrasjoner, 3D-perspektiver, skisser, møblerte plantegninger m.m. er kun ment for å danne et inntrykk av den ferdige bebyggelsen, og kan således ikke anses som endelig leveranse. Inntegnet utstyr/inventar som for eksempel inntegrerte hvitevarer på bad, lamper i oppholdsrom, møbler, skap o.l. Dette stiples som regel på salg og kontraktstegning. Legge retning på gulv kan også bestemmes av entreprenør, uavhengig av hva illustrasjoner viser.

3D perspektiver er tatt fra arkitekt tegninger og ulike boliger og gjenspeiler ikke en aktuell bolig. Interessenter oppfordres til å vurdere dette med solforhold, utsikt, beliggenhet i forhold til terreng og omkringliggende bygningsmasse før innlevering av kjøpstilbud.
Alle opplysninger i leveransebeskrivelsen og salgsoppgaven er gitt med forbehold om selgers rett til endringer som er hensiktsmessige eller nødvendige, forutsatt at den ikke reduserer den generelle standarden vesentlig. Kjøper aksepterer uten prisjustering at selger har rett til å foreta slike endringer. Eksempler på slike endringer kan være innkassing av teknisk anlegg, mindre endringer av boligens areal eller lignende.

Utomhusplanen i prospektet er av en slik karakter at den ikke kan anses som et kart., men illustrasjonsskisse fra landskapsarkitekt. Utomhusplanen er utarbeidet for å illustrere tomtens planlagte opparbeidelse, men er ikke endelig fastsatt og kan endres i forbindelse med detalj prosjekteringen og den offentlige saksbehandlingen.
Selger står fritt til å endre boligbetegnelse i prosjekteringsprosessen og det tas forbehold om eventuelt mindre endring av antall boliger.

Det kan være aktuelt med reseksjonering frem til siste seksjon er solgt, og kjøper/sameier kan ikke motsette seg å undertegne nødvendige begjæringer/erklæringer i den forbindelse.
Kjøper/sameier plikter å medvirke til en slik reseksjonering så fremt dette ikke vesentlig foringer verdien av kjøpers/sameiers egen seksjon.

Øvrige forbehold

Selger forbeholder seg retten til uten varsel å kunne endre priser og betingelser for usolgte
seksjoner og parkeringsplasser/boder samt retten til å leie ut usolgte seksjoner.

Det forutsettes at skjøtet tinglyses i kjøpers navn iht. kjøpekontrakten. Ved eventuell endring i eierskap /navneendring fra kjøpers side etter at bindende avtale er inngått, vil det påløpe et administrasjonsgebyr på kr. 25.000. Eventuell endring krever selgers samtykke.

Alle opplysninger i dette prospektet er gitt med forbehold om rett til endringer som er hensiktsmessige og nødvendige.

Tilvalg og endringer

Det vil, i en tidsbegrenset periode, være anledning til å gjøre tilvalg/endringer til boligene. Mulige tilvalg vil bli presentert i en egen tilvalgsbrosjyre. Det opplyses om at det er begrensede muligheter for tilvalg/endringer grunnet konsept og leveranse.

Alle tilvalg/endringer avtalefestes direkte mellom kjøper og entreprenør i separat avtale. Eventuelle tilvalgsbestillinger innbetales til meglers klientkonto, eller faktureres direkte fra entreprenør/selger.

Endringer ut over de som fremkommer av tilvalgsbrosjyre må på fritt grunnlag vurderes av selger, entreprenør og dennes underleverandør. Det kan ikke påregnes at andre endringer kan foretas, og de kan uansett ikke utføres om de er i strid med rammetillatelse eller vil kunne medføre forsinkelse i prosjektets fremdrift. Typiske endringer som ikke tillates er endringer i fasade, vindusform og plassering av vann og avløp. Det er ikke mulig med egeninnsats og det er heller ikke anledning til å fravike prosjektets leverandører.
Betaling for endrings- eller tilleggsarbeider som er avtalt direkte mellom kjøper og selger, skjer i forbindelse med sluttoppgjøret.

Inngås kjøpsavtale etter igangsetting av prosjektet, må interessenter/kjøper være kjent med og akseptere at frister for tilvalg og endringer kan være utgått. Det må tas forbehold i kjøpstilbudet dersom interessenter/kjøper har ønske om tilvalg/endringer som denne mener skal være mulig å få levert av selger.
Konferer megler for nærmere informasjon.

Vi byr på mange tilvalgsmuligheter og har laget to pakker for å gjøre oppgradering enklere.

Tilvalgspakke – Harmoni

Tilleggspakke med praktiske oppgraderinger og en moderne, stilren finish – uten at det går på bekostning av budsjettet. Pakken kombinerer funksjonalitet og estetikk, og skaper en behagelig atmosfære i hele boligen.

Tilvalgspakke – Eleganse eller komfort

Vår mest eksklusive tilleggspakke for deg som ønsker det aller beste – et hjem som utstråler komfort og eksklusivitet. Denne pakken er fylt med høyeste kvalitet på materialer, detaljer og tekniske løsninger. Fra flotte fliser på baderommet til eksklusive parkettgulv og varmepumpe.

Beskrivelse av tomt

Det følger med ca. 500 kvm tomt. Tomten er delvis flat og delvis skrånende. Deler av tomten opparbeides med gruset gårdsplass og gressjord med sådd plen.

Tinglyste rettigheter og forpliktelser

Kommunen har legalpant som sikkerhet for betaling av kommunale avgifter. Legalpant er pant som følger av loven, og som ikke tinglyses. Legalpant følger derfor eiendommen ved salg. På eiendommen kan det være tinglyst erklæringer som f eks rett for kommunen til å vedlikeholde rørsystemer for vann- og kloakk. Disse erklæringene vil følge eiendommen ved salg. Kontakt megler for nærmere informasjon.

Øvrige sameiere har panterett i seksjonen for krav mot sameieren som følge av sameieforholdet, jf. eierseksjonsloven § 31. Pantekravet kan ikke overstige 2G (Folketrygdens grunnbeløp). Sameiet kan vedtektsfeste ytterligere panterett for sameiet. Vedtektsfestet pant tinglyses i seksjonene.

Servitutter / rettigheter

Eiendommen overdras fri for pengeheftelser, med unntak av eventuelle erklæringer, avtaler, servitutter og panteheftelser som fremgår av salgsoppgaven og skal følge med eiendommen ved salg. Kjøpers bank vil få prioritet etter disse. Følgende servitutter er tinglyst på eiendommens grunnboksblad:

Ingen.

Vei / Vann / Avløp

Eiendommen er tilknyttet offentlig vann- og avløp. Vi gjør oppmerksom på at private ledninger vedlikeholdes for eiers regning. For private fellesledninger er det normalt tilknyttet solidarisk vedlikeholdsplikt. Det er privat vei til offentlig vei.

Ferdigattest eller midl. brukstillatelse

Ved overtagelse skal det som minimum foreligge midlertidig brukstillatelse. Den midlertidige brukstillatelsen skal avløses av en ferdigattest når alle eventuelle gjenstående arbeider er ferdigstilt av utbygger. Det er selgers ansvar å fremskaffe dette innen overtakelse.

Verdi ved skattefastsetting

Formuesverdien er ikke fastsatt. Formuesverdien fastsettes av skatteetaten etter en beregningsmodell om boligen er primær eller sekundær. Formuesverdien for primærbolig utgjør 25% av beregnet markedsverdi opp til kr. 10 000 000,- og 70% for den delen som overstiger dette, og 100% av sekundærbolig for 2023 og 2024. Det gjøres oppmerksom på at kjøper selv må sende inn opplysninger om adresse, areal, boligtype og byggeår til skattemyndighetene. Det tas forbehold om endring av satser.

Reguleringsforhold

Eiendommen er regulert til minihus jf. reguleringsplan «Nordre Auli» fra Nes kommune.

Kommunale avgifter

Disse er ikke fastsatt da boligene ikke er bygget. Nes kommune fastsetter endelige kommunale avgifter (inkl. eiendomsskatt) og det tas derfor forbehold om dette. Kommunale avgifter vil faktureres direkte hver enkelt eier.

Beskrivelse av sameiet

En sameier eier en andel i eiendommen, med tilknyttet enerett til bruk av sin bruksenhet, jf. eierseksjonsloven § 25.

Ingen kan erverve mer enn to boligseksjoner i et sameie, jf. eierseksjonsloven § 23 første ledd. Dersom et erverv har funnet sted i strid med eierseksjonslovens regler kan Kartverket nekte overskjøting.
Dersom overskjøting blir nektet, er kjøper likevel forpliktet til å gjennomføre handelen med selger, og oppgjør til selger vil finne sted tross manglende overskjøting.

Interessenter oppfordres til å sette seg inn i sameiets vedtekter m.m. Se særlig om vedtekter og husordensregler knyttet til husdyrhold, dugnader o.l.

Andre faste løpende kostnader

Foruten eventuelle lån og kommunale avgifter, vil strøm, medieabonnementer, forsikring etc. være faste løpende kostnader.

Betalingsbetingelser

Fullt oppgjør ved overtakelse (Ingen forskudd) betales til meglers eller lignende klientkonto så snart kjøper har mottatt bekreftelse fra megler om at selger har stilt entreprenørgaranti etter bustadoppføringsloven (buofl) § 12 og forskuddsgaranti etter buofl § 47. Dersom kjøper er å regne som profesjonell innkreves 20 % forskudd. Forskudd innbetalt til meglers klientkonto er selgers penger og under selgers råderett fra det tidspunkt selger har stilt garanti etter buofl § 47. Også avkastning av pengene er selgers fra det tidspunkt selger har oppfylt vilkårene for å motta forskudd. Dersom kjøper ikke har signert kjøpekontrakt eller innbetalt forskudd innen 30 dager etter aksept av bud, og dette ikke skyldes forhold på selgers side, er kjøper innforstått med at dette utgjør et vesentlig mislighold av kjøpers kontraktsforpliktelser. Dette vil gi selger rett til å heve avtalen og gjennomføre dekningssalg for kjøpers regning.

Finansiering

Det kreves ett godkjent finansiering.

Sluttoppgjør

Sluttoppgjør (rest kjøpesum, tilvalg og omkostninger) skal innbetales til meglers klientkonto senest 3 virkedager før overtagelse.

Betaling for endring og tilvalg

Betaling for endrings- eller tilleggsarbeider som er avtalt direkte mellom kjøper og selger, skjer i forbindelse med sluttoppgjøret.

Kostnader ved avbestilling

Kjøper har rett til å avbestille leveransen før overtagelse har funnet sted, jf. buofl.§§ 52-54.
Ved avbestilling vil selger ha krav på full erstatning for sitt økonomiske tap iht. buofl. Kapittel VI. Kontakt megler for nærmere informasjon dersom avbestilling vurderes. Bestilte endrings- og tilleggsarbeider betales i slike tilfeller i sin helhet.

Transport av kontrakt/Overdragelse før overtakelse

Transport av kontrakt/overdragelse før overtagelse krever selgers samtykke før salgsprosessen igangsettes. Samtykke kan nektes på fritt grunnlag, og selger kan også stille betingelser for et eventuelt samtykke. Ved utbyggers eventuelle skriftlige samtykke påløper et administrasjonsgebyr på kr. 20 000,- inkl. mva. og et transportgebyr til selger på kr. 45 000,- inkl. mva, totalt kr. 65 000,-.

Kredittvurdering/Hvitvaskingsloven

Selger forbeholder seg retten til å foreta kredittvurdering av kjøpere. Selger forbeholder seg retten til å kreve dokumentasjon av kjøpers finansiering. Eiendomsmeglere ble fra 06.03.09 underlagt bestemmelsene i Hvitvaskingsloven. Dette innebærer blant annet at eiendomsmegleren har plikt til å melde fra til Økokrim om eventuelle mistenkelige transaksjoner.

Adgang til utleie

Det er ikke kjent at det foreligger offentligrettslige hindre for at hele eller deler av eiendommen kan leies ut.

Konsesjon / Odel

Verken odel eller konsesjon er relevant for denne eiendommen.

Sikkerhetsstillelse

Alle eiendomsmeglingsforetak har lovpålagt forsikring av klientmidler begrenset oppad til kr 45 mill. Enkeltsaker er forsikret inntil kr 15 mill. Dersom kjøpers låneinstitusjon krever tilleggsforsikring ved omsetning over 15 millioner, må kjøper selv eller dennes låneinstitusjon dekke utgiftene forbundet med dette.

Planlagt overtagelse

Ferdigprosjektering og igangsettingstillatelse går i gang når 11 enheter er solgt. Fra arbeidet igangsettes, legges det opp til en bygge-/leveransetid på ca. 12 måneder. Når kommunal godkjenning foreligger, vil hver kjøper varsles med en overtagelsesperiode på 3 mnd. Overtagelsen skal ligge innenfor denne perioden, og kjøper vil senere, i god tid før, varsles om endelig overtagelsesdato.

Selgers forbehold

Kjøper må være innforstått med den usikkerhet som foreligger med hensyn til fremdrift og overtagelse, og kan ikke påberope seg overskridelser av de her angitte estimerte overtagelsestidspunkt som avtalt frist for ferdigstillelse/overtagelse. En forsinkelse i forhold til disse estimatene vil således ikke kunne danne grunnlag for krav om dagmulkt eller annen erstatning.

Tegninger og bilder i illustrasjonsbok er kun illustrasjoner og kan avvike i forhold til plan- og fasadetegninger som vedlegges kontrakt, herunder teknisk beskrivelse. Alle illustrasjoner, skisser, møblerte plantegninger med mer er kun ment å danne et inntrykk av den ferdige bebyggelsen, og kan således ikke anses som endelig leveranse. Inntegnet utstyr/ inventar medfølger ikke, så som for eksempel møbler og garderobeskap, og det vil derfor fremkomme elementer i presentasjonsmaterialet som ikke inngår i leveransen. Beplanting og blomster, innredninger, tepper, møbler, markiser, og annet tilbehør utover det som er beskrevet ovenfor, leveres ikke. Det tas forbehold om at sjakter og føringsveier for tekniske installasjoner ikke er ferdig inntegnet. Innkassinger vil ha varierende størrelse avhengig avboligtype og etasjeplan.

Generelle beskrivelser av prosjektet i salgs- og markedsføringsmateriell vil ikke passe for alle boligene i prosjektet. Interessent oppfordres derfor særskilt til å vurdere dette (solforhold, utsikt, beliggenhet i forhold terreng og omkringliggende bygningsmasse med mer) før budgivning. Alle opplysninger er gitt med forbehold om rett til endringer som er hensiktsmessige og/eller nødvendige, likevel slik at den generelle standard og utførelse ikke forringes eller endres vesentlig. Kjøper aksepterer uten prisjustering at selger har rett til å foreta slike endringer. Eksempel på slike endringer kan være innkassinger og nedforinger av teknisk anlegg, mindre endringer av boligens areal og lignende.

Utbygger forbeholder seg retten til å foreta nødvendige endringer som følge av offentlige pålegg eller tilpasninger i forhold til tekniske løsninger. Videre forbeholder utbygger seg rett til å bestemme endelig utforming av utomhusarealer, materialvalg og fargevalg samt innvendige og utvendige fellesarealer, uten at kjøper har rett til å kreve endringer av avtalt pris. Dette gir ikke utbygger rett til å foreta endringer som er av en slik art at boligens standard objektivt sett forringes eller objektivt svekker boligens bruksverdi. Utbygger skal så langt det er praktisk mulig informere kjøper om slike endringer. Det kan være avvik mellom de plantegninger og skisser som er presentert i prospektet, og den endelige leveransen.

Solgt ihht bustadoppføringsloven

Boligene selges i henhold til Bustadoppføringslova som regulerer kjøpers (forbrukers) rettigheter og plikter ved avtale om oppføring av bolig og kjøp av fast eiendom der bygningen ikke er fullført når avtalen inngås. Ved salg til aksjeselskap legges Avhendingslovens bestemmelser til grunn. For øvrig gjelder Lov om eierseksjoner for eierseksjonssameiet og driften av dette.

Garantier

Selger er etter Bustadoppføringslova § 12 pliktig til å stille garanti på 3 % av kjøpesummen i byggetiden og 5 % av kjøpesummen i 5 år etter overlevering. Garantien vil bli stilt straks forbeholdene om realisering faller bort. Til det er dokumentert at det foreligger garanti i samsvar med paragrafen her, har forbrukeren rett til å holde tilbake alt vederlag.
Overføring av innbetalt beløp til selger er avhengig av selgers garantistillelse i.h.t. Bustadoppføringslova § 47.

Kjøpekontrakter

Avtale om kjøp av leilighet forutsettes inngått iht. kjøpstilbud og kjøpekontraktsformular. Kjøpekontrakt signeres i utgangspunktet digitalt i rimelig tid etter aksept av kjøpstilbud. Fysisk kontraktsmøte kan avholdes etter nærmere avtale.

Budregler

Boligene selges til fast pris. Signert kjøpstilbud leveres til megler sammen med rett kopi av legitimasjon, eller elektronisk gjennom «gi bud» knappen på meglers annonser. Kravet til legitimasjon er oppfylt for budgivere som benytter elektronisk bud med e-signatur, eksempelvis BankID.

Forsikring

Bygg og eiendom vil være forsikret av utbygger frem til overtagelse, deretter tegnes fullverdiforsikring av hver enkelt seksjonseier. Kjøper må også selv tegne innbo- og løsøreforsikring.

Finansiering

Kjøper er innforstått med at irreversibelt finansieringsbevis for hele kjøpesummen skal forelegges megler når avtale om kjøp inngås iht. Bustadoppføringslovas §46 2.ledd, og at disse opplysningene kan bli videre formidlet til utbyggers byggelånsbank.
Handelen er juridisk bindende for begge parter ved aksept. Dersom kjøper ikke overholder sin forpliktelse med tilfredsstillende finansieringsbevis, er kjøper allikevel bundet og selger vil kunne påberope avtalen som vesentlig misligholdt og heve avtalen. Kjøper samtykker til at omkostninger knyttet til heving og dekningssalg i så fall dekkes av kjøper.

Lov om hvitvasking

Megler er underlagt lov om hvitvasking som innebærer plikt til å melde ifra til Økokrim om mistenkelige transaksjoner

Prosjektfremdrift

1
Planlegging
Q1 2025
2
Salgsstart
Q1 2025
3
Byggestart
Q3 2025
4
Innflytting
Q3 2025

Bildegalleri

Illustrasjonene kan vise tilvalg som ikke er inkludert i prisen. Endelig leveranse følger leveransebeskrivelsen.

Plantegninger

Meld interesse

"*" obligatorisk felt

Dette feltet er for valideringsformål og skal stå uendret.
This field is hidden when viewing the form

Kontaktperson

Per Anders Lindstad

Daglig leder

Visninger

Vi arrangerer private visninger etter avtale. Ta kontakt for å booke din visning og se Tunneltoppen 10 med egne øyne.