Bruksareal
Soverom
Bad
Energiklasse
LINE er en moderne og funksjonell enebolig utviklet av Rak Arkitektur i samarbeid med Minihus Norge AS og Norske Smaahus AS .
Boligen kombinerer tidløs design med høy kvalitet og fleksible løsninger – inkludert mulighet for hybel.
Med en effektiv og gjennomtenkt planløsning får du mye bolig på relativt kompakt areal, og med energieffektive løsninger som standard.
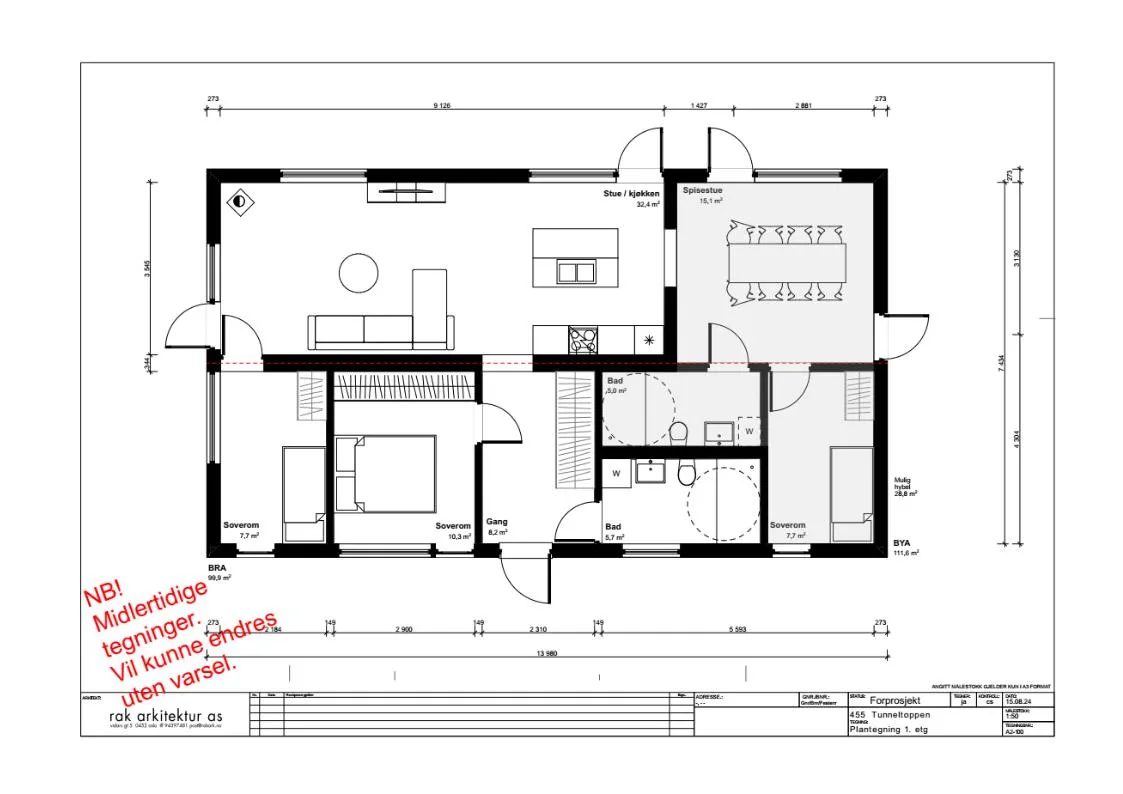
Boligen har et praktisk og familievennlig planløp med gode romløsninger.
Line inneholder:
Entré, stue/kjøkken, to bad og tre soverom – samt mulighet for separat hybelløsning.
Utebod på 5 m² følger med som standard.
Boligen har en romslig og praktisk entré med plass til garderobe like innenfor døren.
Som standard leveres laminatgulv med varmefolie og malte gipsflater. Fargevalg tilpasses kjøpers ønsker.
Tilvalg inkluderer overflater i vinyl, parkett, kryssfiner eller leire.
Listefrie overganger mellom vegger og tak gir et moderne, sømløst uttrykk.
Stue og kjøkken ligger i åpen løsning og danner et lyst, luftig og sosialt allrom med takhøyde på inntil 3,35 meter. Store vindusflater gir rikelig med naturlig lys og god kontakt med naturen utenfor.
Rommet er ca. 32 m² og har utgang til planlagt balkong. Balkong leveres etter avtale.
Kjøkken leveres etter kundens ønske med sikte på optimal arbeidsflate og oppbevaringsplass. Inkludert i leveransen er en oppgradert kjøkkenpakke til kr 100 000,- fra IKEA eller tilsvarende kvalitet.
Pakken inkluderer:
Alt over oppgitt beløp regnes som tilvalg.
Stue/kjøkken leveres med laminatgulv, gulvvarme, malte gipsvegger og LED-belysning i tak.
Overflater kan oppgraderes til parkett, vinyl, kryssfiner eller leirpuss etter ønske.
Line har tre soverom med plass til garderobeskap.
Hovedsoverommet er ca. 11 m² og har LED-spotter i tak samt utgang til planlagt uteområde.
Som tilvalg kan boligen leveres med bls. takvinduer.
Overflater på soverommene leveres som i stue/kjøkken.
Boligen leveres med to bad som standard, begge med delikat og moderne uttrykk.
Badene leveres flislagt både på gulv og vegger.
Inkludert leveranseverdi er kr 40 000,- pr. bad, som dekker:
Som tilvalg kan innredningen oppgraderes etter avtale.
Badene leveres med elektriske varmekabler og malt gipstak.
Avtrekk styres med fuktstyrt vifte.
Boligen varmes opp med varmefolie i alle rom (unntatt bad), og varmekabler på bad.
Som tilvalg kan det leveres panelovner, peisovn eller varmepumpe.
Teknisk leveranse:
Line kan leveres med hybelløsning fra kr 150 000,-.
Løsningen inkluderer egen inngang, hybelkjøkken – ideelt for utleie eller generasjonsbolig.
Tekniske og planmessige tilpasninger avklares i detaljprosjektering.
Tomten leveres med parkeringsplass og ferdig tilrettelagt adkomst.
Det er mulighet for elbillader og opparbeidelse av terrasse, platting og hage etter ønske.
Alle boliger fra Minihus Norge AS leveres som standard med energiklasse B, avhengig av plassering og tilvalg.
Endelig energimerking utføres i forbindelse med detaljprosjektering.
Boligen planlegges ferdigstilt innen 1. kvartal 2026. Dette er estimert tidspunkt, og selger vil varsle kjøper om endelig overtakelsesdato ca. 2 måneder før ferdigstillelse.
Forhåndsbefaring gjennomføres 3–4 uker før overtakelse med protokollføring.
Ved overtakelse mottar kjøper FDV-dokumentasjon og brukerveiledning.
Dersom deler av utomhusarbeidene ikke er ferdigstilt ved overtakelse, vil disse ferdigstilles snarest mulig etter sesong.
Byggestart forutsetter:
Det kan forekomme mindre justeringer i prosjektets tekniske løsninger. Leveransebeskrivelsen er retningsgivende ved avvik fra plantegninger.
Selger forbeholder seg retten til å gjøre nødvendige endringer som følge av offentlige krav eller tekniske forbedringer.
Endringer som ikke reduserer den generelle standarden kan gjøres uten prisjustering.
Tegninger og 3D-perspektiver i prospektet er illustrasjoner, og endelig leveranse kan avvike i detaljer som materialvalg, innredning eller møblering.
I en tidsbegrenset periode vil det være mulig å gjøre tilvalg og endringer på boligen.
Tilvalg beskrives i egen tilvalgsbrosjyre.
Alle tilvalg avtales skriftlig mellom kjøper og Minihus Norge AS.
Betaling for tilvalg og endringsarbeider skjer i forbindelse med sluttoppgjør.
Ved eventuell avbestilling før overtakelse gjelder reglene i
Bustadoppføringslova §§ 52–54.
Selger kan kreve erstatning for dokumenterte økonomiske tap. Bestilte tilvalg betales i sin helhet.
Transport av kontrakt før overtakelse krever skriftlig samtykke fra Minihus Norge AS.
Ved samtykke påløper et administrasjonsgebyr på kr 20 000,- inkl. mva, samt transportgebyr på kr 45 000,- inkl. mva.
Kjøper må kunne fremlegge finansieringsbevis for hele kjøpesummen ved kontraktsinngåelse.
Sluttoppgjør (kjøpesum, tilvalg og omkostninger) innbetales til meglers klientkonto senest 3 virkedager før overtakelse.
Selger stiller garanti iht. Bustadoppføringslova § 12:
5 % av kjøpesum i 5 år etter overtakelse
Kjøper kan holde tilbake kjøpesum til garanti er dokumentert.
Kjøp skjer til fast pris.
Kjøpekontrakt inngås digitalt basert på kjøpstilbud.
Krav om legitimasjon gjelder for alle kjøpere, i henhold til hvitvaskingsloven.
Bygg og eiendom er forsikret av Minihus Norge AS frem til overtakelse.
Deretter tegner kjøper egen fullverdiforsikring og innboforsikring.
Minihus Norge AS og eventuelle tilknyttede meglere er underlagt Lov om hvitvasking, som innebærer plikt til å melde fra til Økokrim ved mistenkelige transaksjoner.
| Boligtype | Enebolig |
|---|---|
| Eierform | Eier (Selveier) |
| Primærrom | 100 m² |
| Bruksareal (BRA) | 100 m² |
| Antall etasjer | 1 |
| Antall soverom | 3 |
| Antall bad | 1 |
| Energimerking | B |
Tilleggspakke med praktiske oppgraderinger og en moderne, stilren finish – uten at det går på bekostning av budsjettet. Pakken kombinerer funksjonalitet og estetikk, og skaper en behagelig atmosfære i hele boligen.
Se vedlagte brosyre i salgsoppgave for mer informasjon.
Vår mest eksklusive tilleggspakke for deg som ønsker det aller beste – et hjem som utstråler komfort og eksklusivitet. Denne pakken er fylt med høyeste kvalitet på materialer, detaljer og tekniske løsninger. Fra flotte fliser på baderommet til eksklusive parkettgulv og varmepumpe.
Se vedlagte brosyre i salgsoppgave for mer informasjon.
Tunneltoppen 10 ligger i et rolig og familievennlig boligområde i Eidsvoll kommune, omgitt av grønne omgivelser og landlig atmosfære – men samtidig med kort vei til alt du trenger i hverdagen. Området kombinerer landlig sjarm med nærhet til moderne fasiliteter.
Eidsvoll er en historisk kommune i Akershus fylke, kjent for både sin nasjonale betydning og sin raske utvikling. Kommunen opplever sterk vekst og tiltrekker seg stadig flere tilflyttere – særlig barnefamilier og pendlere – takket være den gunstige kombinasjonen av:
Eidsvoll har et aktivt og levende lokalsamfunn med et bredt spekter av tilbud innen barnehager, skoler, kultur og fritid. Her finnes alt fra kulturskole, idrettslag og friluftsområder til ridning, svømming og båtliv. Elven Vorma og Mjøsa gir fantastiske muligheter for fiske, padling og naturopplevelser året rundt.
Last ned brosjyre for Tunneltoppen 10 med bilder og informasjon
Detaljert oversikt over hva som er inkludert i leveransen
Rammetillatelse
Det foreligger ikke rammetillatelse fra kommunen, men søknaden er sendt inn i uke 42.
Tinglyste forpliktelser og rettigheter
Det er per dags dato ingen heftelser som er tinglyst i eiendommens grunnboksdatablad.
Sameiet har lovpålagt panterett (legalpant) til sameiet som sikkerhet for oppfyllelse av den enkelte sameiers fellesforpliktelser. Legalpant har førsteprioritet i eierseksjonene og tinglyses ikke.
Selger kan tinglyse bestemmelser som vedrører sameiet, naboforhold eller forhold pålagt av myndighetene. Videre kan selger tinglyse bruksretter til fremtidige byggetrinn.
Selger forbeholder seg retten til å selge sine rettigheter og forpliktelser overfor kjøper til 3. mann. Kopi av grunnbokutskrift og servitutter tinglyst på eiendommen kan fremlegges av megler.
Fra hovedbølet som eiendommen er fradelt fra, kan det være tinglyst servitutter som erklæringer/avtaler. Dog har selger opplyst at han ikke har kjennskap til slike erklæringer/avtaler som har innvirkning på denne eiendommen.
Energimerking
Alle nye boliger over 50 kvm skal energimerkes. Energimerking utføres av selger og vil bli utført i forbindelse med detaljprosjekteringen. Energimerkingen vil foreligge på et senere tidspunkt, men den foreløpige energimerkingen tilsier at boligene vil få energiklasse B.
Oppvarming – Teknisk
Boligene varmes opp med varmefolie i alle rom. Som tilvalg kan man sette inn panelovner, ildsted i stuen og/eller varmepumpe.
Den elektriske leveransen prosjekteres av Totalservice AS og leveres iht. NEK 400. Det leveres skjult anlegg, LED belysning, balansert vemntilasjonsanlegg og varmtvannsbereder på 80 liter som plasseres i skap på bad over wc.
Parkering
Det medfølger parkeringsplasser til boligen, og det vil kunne bestilles elbillader.
Øvrige fellesarealer
Ansvar og samtlige kostnader ved fellesarealet, herunder kostnadene til drift og vedlikehold, fordeles forholdsmessig på de bruksberettigede.
Utomhusareal
Fellesarealer utomhus overskjøtes med ideell andel til alle sameier som skal ha rettigheter. Gjennom utomhussameiet er man pliktig til å vedstå seg og respektere realsameiets rettigheter og plikter.
Estimerte felleskostnader
Det er ikke utarbeidet driftsbudsjett. Det legges opp til lavest mulige felleskostnader.
Felleskostnader kan f.eks dekke b.la. fellesstrøm, vedlikeholdsfond av fellesarealer, snøbrøyting og lignende. Det tas forbehold om at endelige kostnader kan avvike fra de stipulerte kostnadene. Det må beregnes kostnader til vedlikehold/serviceavtale til pumpehus og evt. vannrenser. Man betaler dog ikke vannavgift til kommunen.
Ved overtakelse vil det bli innkrevd oppstartkapital til Sameiet i tillegg til et etableringsgebyr pålydende kr. 1.350,- pr. seksjon.
Det tas forbehold om endringer i budsjettpostene og fellesutgiftene. Kostnader med eiendommen som ikke knytter seg til den enkelte bruksenhet, skal fordeles mellom sameierne etter sameiebrøken med mindre særlige grunner taler for å fordele kostnadene etter nytten for den enkelte bruksenhet eller etter forbruk. Normalordningen er at eierbrøken fordeles etter bruksareal (BRA). Kjøper er forpliktet til å betale sin andel av eierseksjonssameiets felleskostnader. Selger forplikter seg til å betale løpende fastsatte felleskostnader, stiftelsesomkostninger og startkapital på usolgte enheter.
Det tas forbehold om oppgitte arealer, antall eierseksjoner, organisering av fellesområder og øvrige opplysninger om prosjektet som kan endre forutsetningene.
Det tas forbehold om stipulerte inntekter og kostnader da styret vil kunne endre budsjettet og inngå avtaler som vil tilføre boligselskapet andre eller større kostnader. Endelig fastsettelse av budsjett og nivå på felleskostnader vil bli foretatt av styret i boligselskapet.
Stipulering av budsjett samt stifting av sameiet anses ikke som eiendomsmegling og omfattes dermed ikke av den sikkerhetsstillelse/ansvarsforsikring som gjelder i eiendomsmeglingsloven.
Forretningsførsel
Selger har ikke inngått bindende forretningsføreravtale. Det skal velges styre før overtakelse. Sameie står fritt til å inngå forretningsføreravtale eller foreta privat forretningsførsel.
Kjøperne vil bli innkalt til oppstartsmøte. Her vil styre bli valgt, i tillegg vil det bli en gjennomgang av sameiets budsjett, vedtekter og ev. husordensregler. Lokalleie i forbindelse med møte og gebyr for registrering i Brønnøysund faktureres sameiet ved overtakelse.
Overtakelse
Boligene planlegges ferdigstilt senest 1 kvartal 2026
Dette gjelder ikke som en bindende frist for å ha boligene klar for overtakelse, herunder ikke grunnlag for å kreve dagmulkt.
Selger vil ca. 2 måneder i forveien sende varsel om estimert tidspunkt for overtakelse.
Selger vil 2-3 uker før ferdigstillelse av Boligen meddele kjøper skriftlig om overtakelsesdato.
3-4 uker før overtakelse vil selger innkalle til en forhåndsbefaring hvor det føres protokoll.
Formålet med forhåndsbefaringen er å kvalitetssikre leveransen. Hver kjøper vil ved overtakelse få overlevert FDV- dokumentasjon.
Selger kan kreve overtakelse inntil fire måneder før den avtalte fristen. Selger skal skriftlig varsle om dette minimum to måneder før det nye overtagelsestidspunktet.
Selger skal innen rimelig tid varsle kjøper dersom det oppstår forhold som vil medføre at han blir forsinket med sin utførelse. Selger har rett til tilleggsfrist dersom vilkårene som nevnt i buofl. § 11 er oppfylt.
Kjøper kan ikke nekte å overta boligen selv om fradeling, seksjonering eller tinglysing av hjemmelsovergang ikke er gjennomført på overtakelsesdagen.
Selger gjør oppmerksom på at nyhetsbrev ikke er å anse som varsel for overtakelse.
Overtakelse av felles- og uteareal skjer samtidig med at den enkelte bolig overtas. Det vil gjennomføres en befaring av felles/utomhusarealer med styret for sameiet for å avdekke evt. feil og mangler samt manglende ferdigstillelse.
Overtakelse av boligen med tilhørende andel fellesareal kan ikke nektes av kjøper selv om fellesareal/utomhusareal ikke er ferdigstilt. Ferdigstillelse av utomhusareal er avhengig av sesong og kan derfor bli ferdigstilt etter overtagelse av boligene. Såfremt deler av utvendige arbeider ikke er ferdigstilt ved overtakelse, skal manglende ferdigstilte arbeider anmerkes i overtakelsesprotokollen. Kjøper opplyses om muligheten til å tilbakeholde nødvendig beløp på meglers klientkonto som sikkerhet for manglene. Tilbakeholdt beløp må stå i samsvar med manglene. Alternativt kan selger stille garanti for ferdigstillelsen, med beløp utarbeidet av takstmann. Ovennevnte informasjon om tilbakeholdelse gjelder også for de forhold som gjenstår for å få ferdigattest.
Kjøper aksepterer at deler av utomhusarbeidene ikke er ferdigstilt ved overtagelse. Selger forplikter seg til å gjøre ferdig disse så snart som mulig etter at bebyggelsen/feltet er ferdig.
Inntil samtlige hus/seksjoner er ferdigstilt, har selger rett til å ha stående anleggsmaskiner og utstyr, eventuelle brakker mv., samt ha stående skilt på den solgte eiendom. Eventuelle skader som dette måtte påføre eiendommen, skal selger snarest utbedre.
Hvis det på tidspunkt for overtagelse gjenstår utomhusarbeider, har kjøper rett til å holde tilbake så mye av kjøpesummen som er nødvendig for å sikre at gjenstående arbeider ferdigstilles, jf. buofl. § 31. Kjøper aksepterer at tilbakehold gjøres på meglers klientkonto. Partene gir sameiets styre fullmakt til å frigi beløpet til Selger etter at gjenstående arbeider anmerket i protokoll er utbedret.
Kjøper kan ikke motsette seg overtakelse selv om boligen ikke er ferdig seksjonert.
Forbehold om realisering
Selger tar følgende forbehold før bygging kan startes:
– Offentlig godkjenning av prosjektet inklusive igangsettingstillatelse
– Forbehold om utbetalt byggelån
Endelig byggestart er avhengig av at ramme og igangsettelses tillatelse blir gitt fra myndighetene i god tid før planlagt byggestart. Det tas generelt forbehold om myndighetenes saksbehandlingstid og eventuelt justering fremdriften for overtakelse/innflytning, hjemmelsoverføring som videre følge av dette.
Det kan forekomme avvik mellom leveransebeskrivelsen og plantegninger. I slike tilfeller er det alltid leveransebeskrivelsen som er retningsgivende.
Det gjøres oppmerksom på at tegninger, herunder plantegninger ikke er godkjent av kommunen. Dersom det er avvik mellom prospekt/internettside og leveransebeskrivelsen er det alltid den endelige leveransebeskrivelsen som gjelder. Omfanget av leveransen begrenset til dette. Alle illustrasjoner, 3D-perspektiver, skisser, møblerte plantegninger m.m. er kun ment for å danne et inntrykk av den ferdige bebyggelsen, og kan således ikke anses som endelig leveranse. Inntegnet utstyr/inventar som for eksempel inntegrerte hvitevarer på bad, lamper i oppholdsrom, møbler, skap o.l. Dette stiples som regel på salg og kontraktstegning. Legge retning på gulv kan også bestemmes av entreprenør, uavhengig av hva illustrasjoner viser.
3D perspektiver er tatt fra arkitekt tegninger og ulike boliger og gjenspeiler ikke en aktuell bolig. Interessenter oppfordres til å vurdere dette med solforhold, utsikt, beliggenhet i forhold til terreng og omkringliggende bygningsmasse før innlevering av kjøpstilbud.
Alle opplysninger i leveransebeskrivelsen og salgsoppgaven er gitt med forbehold om selgers rett til endringer som er hensiktsmessige eller nødvendige, forutsatt at den ikke reduserer den generelle standarden vesentlig. Kjøper aksepterer uten prisjustering at selger har rett til å foreta slike endringer. Eksempler på slike endringer kan være innkassing av teknisk anlegg, mindre endringer av boligens areal eller lignende.
Utomhusplanen i prospektet er av en slik karakter at den ikke kan anses som et kart., men illustrasjonsskisse fra landskapsarkitekt. Utomhusplanen er utarbeidet for å illustrere tomtens planlagte opparbeidelse, men er ikke endelig fastsatt og kan endres i forbindelse med detalj prosjekteringen og den offentlige saksbehandlingen.
Selger står fritt til å endre boligbetegnelse i prosjekteringsprosessen og det tas forbehold om eventuelt mindre endring av antall boliger.
Det kan være aktuelt med reseksjonering frem til siste seksjon er solgt, og kjøper/sameier kan ikke motsette seg å undertegne nødvendige begjæringer/erklæringer i den forbindelse.
Kjøper/sameier plikter å medvirke til en slik reseksjonering så fremt dette ikke vesentlig foringer verdien av kjøpers/sameiers egen seksjon.
Øvrige forbehold
Selger forbeholder seg retten til uten varsel å kunne endre priser og betingelser for usolgte
seksjoner og parkeringsplasser/boder samt retten til å leie ut usolgte seksjoner.
Det forutsettes at skjøtet tinglyses i kjøpers navn iht. kjøpekontrakten. Ved eventuell endring i eierskap /navneendring fra kjøpers side etter at bindende avtale er inngått, vil det påløpe et administrasjonsgebyr på kr. 25.000. Eventuell endring krever selgers samtykke.
Alle opplysninger i dette prospektet er gitt med forbehold om rett til endringer som er hensiktsmessige og nødvendige.
Tilvalg og endringer
Det vil, i en tidsbegrenset periode, være anledning til å gjøre tilvalg/endringer til boligene. Mulige tilvalg vil bli presentert i en egen tilvalgsbrosjyre. Det opplyses om at det er begrensede muligheter for tilvalg/endringer grunnet konsept og leveranse.
Alle tilvalg/endringer avtalefestes direkte mellom kjøper og entreprenør i separat avtale. Eventuelle tilvalgsbestillinger innbetales til meglers klientkonto, eller faktureres direkte fra entreprenør/selger.
Endringer ut over de som fremkommer av tilvalgsbrosjyre må på fritt grunnlag vurderes av selger, entreprenør og dennes underleverandør. Det kan ikke påregnes at andre endringer kan foretas, og de kan uansett ikke utføres om de er i strid med rammetillatelse eller vil kunne medføre forsinkelse i prosjektets fremdrift. Typiske endringer som ikke tillates er endringer i fasade, vindusform og plassering av vann og avløp. Det er ikke mulig med egeninnsats og det er heller ikke anledning til å fravike prosjektets leverandører.
Betaling for endrings- eller tilleggsarbeider som er avtalt direkte mellom kjøper og selger, skjer i forbindelse med sluttoppgjøret.
Inngås kjøpsavtale etter igangsetting av prosjektet, må interessenter/kjøper være kjent med og akseptere at frister for tilvalg og endringer kan være utgått. Det må tas forbehold i kjøpstilbudet dersom interessenter/kjøper har ønske om tilvalg/endringer som denne mener skal være mulig å få levert av selger.
Konferer megler for nærmere informasjon.
Tinglyste rettigheter og forpliktelser
Kommunen har legalpant som sikkerhet for betaling av kommunale avgifter. Legalpant er pant som følger av loven, og som ikke tinglyses. Legalpant følger derfor eiendommen ved salg. På eiendommen kan det være tinglyst erklæringer som f eks rett for kommunen til å vedlikeholde rørsystemer for vann- og kloakk. Disse erklæringene vil følge eiendommen ved salg. Kontakt megler for nærmere informasjon.
Øvrige sameiere har panterett i seksjonen for krav mot sameieren som følge av sameieforholdet, jf. eierseksjonsloven § 31. Pantekravet kan ikke overstige 2G (Folketrygdens grunnbeløp). Sameiet kan vedtektsfeste ytterligere panterett for sameiet. Vedtektsfestet pant tinglyses i seksjonene.
Servitutter / rettigheter
Eiendommen overdras fri for pengeheftelser, med unntak av eventuelle erklæringer, avtaler, servitutter og panteheftelser som fremgår av salgsoppgaven og skal følge med eiendommen ved salg. Kjøpers bank vil få prioritet etter disse. Følgende servitutter er tinglyst på eiendommens grunnboksblad:
Ingen.
Vei / Vann / Avløp
Eiendommen er tilknyttet offentlig vann- og avløp. Vi gjør oppmerksom på at private ledninger vedlikeholdes for eiers regning. For private fellesledninger er det normalt tilknyttet solidarisk vedlikeholdsplikt. Det er privat vei til offentlig vei.
Ferdigattest eller midl. brukstillatelse
Ved overtagelse skal det som minimum foreligge midlertidig brukstillatelse. Den midlertidige brukstillatelsen skal avløses av en ferdigattest når alle eventuelle gjenstående arbeider er ferdigstilt av utbygger. Det er selgers ansvar å fremskaffe dette innen overtakelse.
Verdi ved skattefastsetting
Formuesverdien er ikke fastsatt. Formuesverdien fastsettes av skatteetaten etter en beregningsmodell om boligen er primær eller sekundær. Formuesverdien for primærbolig utgjør 25% av beregnet markedsverdi opp til kr. 10 000 000,- og 70% for den delen som overstiger dette, og 100% av sekundærbolig for 2023 og 2024. Det gjøres oppmerksom på at kjøper selv må sende inn opplysninger om adresse, areal, boligtype og byggeår til skattemyndighetene. Det tas forbehold om endring av satser.
Reguleringsforhold
Eiendommen er regulert til boligformål.
Kommunale avgifter
Disse er ikke fastsatt da boligene ikke er bygget. Nes kommune fastsetter endelige kommunale avgifter (inkl. eiendomsskatt) og det tas derfor forbehold om dette. Kommunale avgifter vil faktureres direkte hver enkelt eier.
Beskrivelse av sameiet
En sameier eier en andel i eiendommen, med tilknyttet enerett til bruk av sin bruksenhet, jf. eierseksjonsloven § 25.
Ingen kan erverve mer enn to boligseksjoner i et sameie, jf. eierseksjonsloven § 23 første ledd. Dersom et erverv har funnet sted i strid med eierseksjonslovens regler kan Kartverket nekte overskjøting.
Dersom overskjøting blir nektet, er kjøper likevel forpliktet til å gjennomføre handelen med selger, og oppgjør til selger vil finne sted tross manglende overskjøting.
Interessenter oppfordres til å sette seg inn i sameiets vedtekter m.m. Se særlig om vedtekter og husordensregler knyttet til husdyrhold, dugnader o.l.
Andre faste løpende kostnader
Foruten eventuelle lån og kommunale avgifter, vil strøm, medieabonnementer, forsikring etc. være faste løpende kostnader.
Finansiering
Kontakt selger for avklaring av finansielle forhold, herunder lån til kjøp av eiendom.
Sluttoppgjør
Sluttoppgjør (rest kjøpesum, tilvalg og omkostninger) skal innbetales til meglers klientkonto senest 3 virkedager før overtagelse.
Betaling for endring og tilvalg
Betaling for endrings- eller tilleggsarbeider som er avtalt direkte mellom kjøper og selger, skjer i forbindelse med sluttoppgjøret.
Kostnader ved avbestilling
Kjøper har rett til å avbestille leveransen før overtagelse har funnet sted, jf. buofl.§§ 52-54.
Ved avbestilling vil selger ha krav på full erstatning for sitt økonomiske tap iht. buofl. Kapittel VI. Kontakt megler for nærmere informasjon dersom avbestilling vurderes. Bestilte endrings- og tilleggsarbeider betales i slike tilfeller i sin helhet.
Transport av kontrakt/Overdragelse før overtakelse
Transport av kontrakt/overdragelse før overtagelse krever selgers samtykke før salgsprosessen igangsettes. Samtykke kan nektes på fritt grunnlag, og selger kan også stille betingelser for et eventuelt samtykke. Ved utbyggers eventuelle skriftlige samtykke påløper et administrasjonsgebyr på kr. 20 000,- inkl. mva. og et transportgebyr til selger på kr. 45 000,- inkl. mva, totalt kr. 65 000,-.
Kredittvurdering/Hvitvaskingsloven
Selger forbeholder seg retten til å foreta kredittvurdering av kjøpere. Selger forbeholder seg retten til å kreve dokumentasjon av kjøpers finansiering. Eiendomsmeglere ble fra 06.03.09 underlagt bestemmelsene i Hvitvaskingsloven. Dette innebærer blant annet at eiendomsmegleren har plikt til å melde fra til Økokrim om eventuelle mistenkelige transaksjoner.
Adgang til utleie
Det er ikke kjent at det foreligger offentligrettslige hindre for at hele eller deler av eiendommen kan leies ut.
Konsesjon / Odel
Verken odel eller konsesjon er relevant for denne eiendommen.
Sikkerhetsstillelse
Alle eiendomsmeglingsforetak har lovpålagt forsikring av klientmidler begrenset oppad til kr 45 mill. Enkeltsaker er forsikret inntil kr 15 mill. Dersom kjøpers låneinstitusjon krever tilleggsforsikring ved omsetning over 15 millioner, må kjøper selv eller dennes låneinstitusjon dekke utgiftene forbundet med dette.
Selgers forbehold
Kjøper må være innforstått med den usikkerhet som foreligger med hensyn til fremdrift og overtagelse, og kan ikke påberope seg overskridelser av de her angitte estimerte overtagelsestidspunkt som avtalt frist for ferdigstillelse/overtagelse. En forsinkelse i forhold til disse estimatene vil således ikke kunne danne grunnlag for krav om dagmulkt eller annen erstatning.
Utbygger forbeholder seg retten til å foreta nødvendige endringer som følge av offentlige pålegg eller tilpasninger i forhold til tekniske løsninger. Videre forbeholder utbygger seg rett til å bestemme endelig utforming av utomhusarealer, materialvalg og fargevalg samt innvendige og utvendige fellesarealer, uten at kjøper har rett til å kreve endringer av avtalt pris. Dette gir ikke utbygger rett til å foreta endringer som er av en slik art at boligens standard objektivt sett forringes eller objektivt svekker boligens bruksverdi. Utbygger skal så langt det er praktisk mulig informere kjøper om slike endringer. Det kan være avvik mellom de plantegninger og skisser som er presentert i prospektet, og den endelige leveransen.
Solgt ihht bustadoppføringsloven
Boligene selges i henhold til Bustadoppføringslova som regulerer kjøpers (forbrukers) rettigheter og plikter ved avtale om oppføring av bolig og kjøp av fast eiendom der bygningen ikke er fullført når avtalen inngås. Ved salg til aksjeselskap legges Avhendingslovens bestemmelser til grunn. For øvrig gjelder Lov om eierseksjoner for eierseksjonssameiet og driften av dette.
Garantier
Selger er etter Bustadoppføringslova § 12 pliktig til å stille garanti på 3 % av kjøpesummen i byggetiden og 5 % av kjøpesummen i 5 år etter overlevering. Garantien vil bli stilt straks forbeholdene om realisering faller bort. Til det er dokumentert at det foreligger garanti i samsvar med paragrafen her, har forbrukeren rett til å holde tilbake alt vederlag.
Overføring av innbetalt beløp til selger er avhengig av selgers garantistillelse i.h.t. Bustadoppføringslova § 47.
Kjøpekontrakter
Avtale om kjøp av leilighet forutsettes inngått iht. kjøpstilbud og kjøpekontraktsformular. Kjøpekontrakt signeres i utgangspunktet digitalt i rimelig tid etter aksept av kjøpstilbud. Fysisk kontraktsmøte kan avholdes etter nærmere avtale.
Budregler
Boligene selges til fast pris. Signert kjøpstilbud leveres til megler sammen med rett kopi av legitimasjon, eller elektronisk gjennom «gi bud» knappen på meglers annonser. Kravet til legitimasjon er oppfylt for budgivere som benytter elektronisk bud med e-signatur, eksempelvis BankID.
Forsikring
Bygg og eiendom vil være forsikret av utbygger frem til overtagelse, deretter tegnes fullverdiforsikring av hver enkelt seksjonseier. Kjøper må også selv tegne innbo- og løsøreforsikring.
Finansiering
Kjøper er innforstått med at irreversibelt finansieringsbevis for hele kjøpesummen skal forelegges megler når avtale om kjøp inngås iht. Bustadoppføringslovas §46 2.ledd, og at disse opplysningene kan bli videre formidlet til utbyggers byggelånsbank.
Handelen er juridisk bindende for begge parter ved aksept. Dersom kjøper ikke overholder sin forpliktelse med tilfredsstillende finansieringsbevis, er kjøper allikevel bundet og selger vil kunne påberope avtalen som vesentlig misligholdt og heve avtalen. Kjøper samtykker til at omkostninger knyttet til heving og dekningssalg i så fall dekkes av kjøper.
Lov om hvitvasking
Megler er underlagt lov om hvitvasking som innebærer plikt til å melde ifra til Økokrim om mistenkelige transaksjoner
"*" obligatorisk felt
Vi arrangerer private visninger etter avtale. Ta kontakt for å booke din visning og se Tunneltoppen 10 med egne øyne.