Anna

30 m²

Bruksareal

1

Soverom

1

Bad

B

Energiklasse

Minihus på 30 kvm

Et lite, stilfullt og unikt minihus på 30 kvm m/eget soverom og livsløpstandard. Miljøvennlig, bærekraftig og lavt energiforbruk.

Anna er et lite, stilfullt og unikt minihus med livsløpstandard – en perfekt løsning for deg som ønsker å bo moderne, bærekraftig og økonomisk. Et kompakt og funksjonelt hjem designet for å utnytte hver kvadratmeter optimalt. Huset kan skreddersys for å passe akkurat dine behov, enten det skal benyttes som bolig, hytte, gjestehus eller et mer privat hjemmekontor.

Huset har energiklasse B og kvalifiserer til Grønt Boliglån.

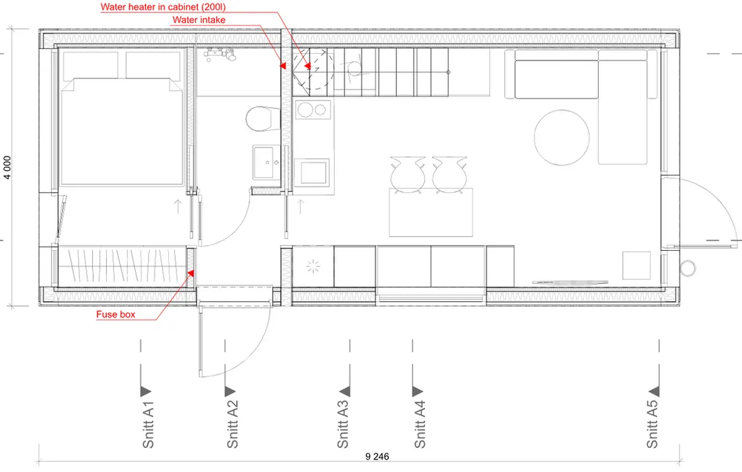
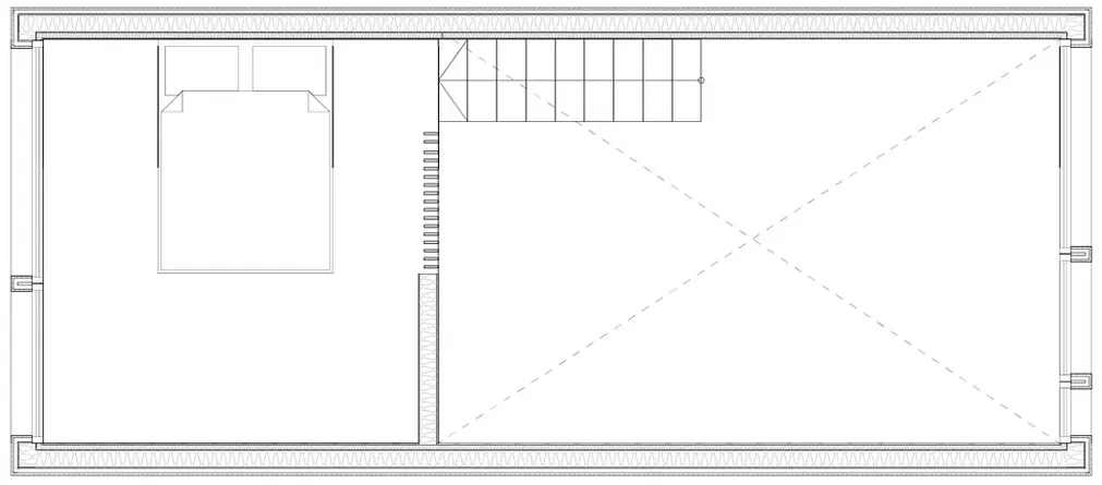
«Lille, vakre Anna» har en flate på ca. 30 kvm og blant annet mulighet for hems som tilvalg. Takhøyden strekker seg helt opp til 3,5 meter, og en stor glassfasade i stuedelen sørger for både rikelig med dagslys og flott kontakt med omgivelsene utenfor.

Anna har en god standard og inkludert i leveransen er både gulvvarme, minibalansert ventilasjon og stilrene overflater. Kjøkken er inkludert til en verdi av kr 45 000,- og bad til en verdi av kr 30 000,-. Begge deler kan tilpasses gjennom tilvalg.

Mulighetene for tilpasninger og tilvalg er mange, slik at du kan løfte hjemmet ditt til et nytt nivå av komfort, kvalitet og estetikk. Tilvalg kan være hems, peis, kryssfiner på veggene og spesialtilpassede løsninger m.m.

Snakk gjerne med våre selgere om dette.

Pris fra
kr 1 100 000,-
Pris inkluderer ikke frakt, kran og prosjektledelse

Høydepunkter

  • Energiklasse B – kvalifiserer til Grønt Boliglån
  • Livsløpsstandard
  • Takhøyde opp til 3,5 meter
  • Stor glassfasade i stuedelen
  • Mulighet for hems
  • Kompakt og arealeffektivt

Har du spørsmål?

Ta kontakt for en uforpliktende samtale om denne modellen.

Tekniske spesifikasjoner

Modellnavn Anna
Bruksareal (BRA) 30 m²
Antall soverom 1
Antall bad 1
Takhøyde 2,40 til 3,40 m
Energimerking B
Hems Tilvalg

Inkludert i standardpakke

  • Gulvvarme i alle rom
  • Minibalansert ventilasjon
  • Stilrene overflater
  • Kjøkken til verdi kr 45 000,-
  • Bad til verdi kr 30 000,-

Valgfrie tillegg

  • Hems
  • Peis
  • Kryssfiner på veggene
  • Spesialtilpassede løsninger
Kontakt oss for priser på tillegg og tilpasninger.

Plantegninger

Nedlastinger

Brosjyre

Last ned brosjyre for Anna med bilder og informasjon

Leveransebeskrivelse

Detaljert oversikt over hva som er inkludert i leveransen

Bildegalleri

Illustrasjonene kan vise tilvalg som ikke er inkludert i prisen. Endelig leveranse følger leveransebeskrivelsen.